| Previous | Next | Back |
| Listing: 1 of 1 | Updated 31 minutes ago |
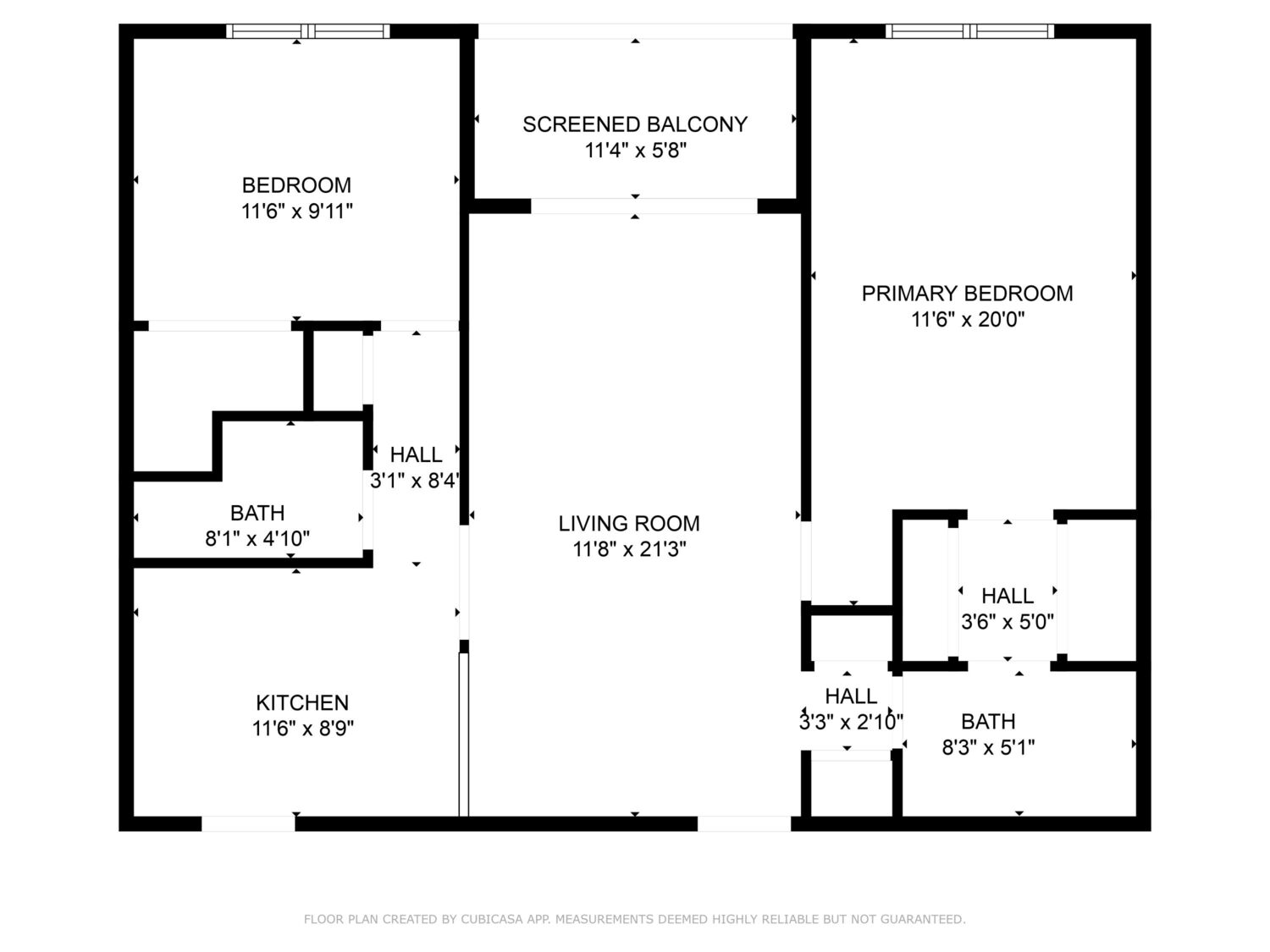
Looking for new kitchen and baths? Look no further. Sought after street level condo. Two bedrooms, 1.5 baths...Move in Ready! Light and bright kitchen renovated in 2020 features new appliances, upgraded cabinets and Silestone countertops plus breakfast bar. Both bathrooms were renovated and new closet shelving was installed in 2020. Open floor plan including living room, dining area and sunporch. This unit features a primary bedroom with private bath and generous closet space. Stackable washer and dryer are conveniently located in the 1/2 bath. Close to Historic Sandwich Village with amenities including restaurants, shopping and library. Easy access off Cape. Highview offers mature, well-maintained plantings, heated indoor pool, tennis court, and a spacious community clubhouse. Carport and basement storage too. Come see. Buyer to verify all herein. Ask about flooring allowance.
General Information for 17 Highview Drive 17 Sandwich Village, MA 02563 |
|
| Town | Sandwich |
| Village | Sandwich Village |
| Subdivision | Highview |
| County | Barnstable |
| Stories | 1 |
| SQFT | 972 |
| Status | Under Contract |
| Listing Number | 22504613 (CCIMLS) |
Rooms Information for 17 Highview Drive 17 Sandwich Village, MA 02563 |
|
| Family Room | 0X0 |
| Kitchen Features | 0X0 |
| Dining Room | 0X0 |
| Bedroom | 0X0 |
| Bedroom 1 | 0X0 |
| Bedroom 2 | 0X0 |
| Bedroom 3 | 0X0 |
| Bedroom 4 | 0X0 |
Interior Information for 17 Highview Drive 17 Sandwich Village, MA 02563 |
|
| Appliances | Electric Water Heater |
Exterior Information for 17 Highview Drive 17 Sandwich Village, MA 02563 |
|
| Lot Description | Marina Major Highway House of Worship |
| Garage | 1 Car Garage |
| Parking | Carport |
| Lot | Marina Major Highway House of Worship |
| Sewer | Private Sewer |
| Pool | Community |
Neighborhood Information for 17 Highview Drive 17 Sandwich Village, MA 02563 |
|
| Neighborhood Swimming Pool | Yes |
| Neighborhood Amenities | Clubhouse Maintenance Structure Pool Landscaping |
Schools information for 17 Highview Drive 17 Sandwich Village, MA 02563 |
|
| Elementary | Sandwich |
| Middle | Sandwich |
| High | Sandwich |
| General Area Public, Private School and College Information | |
Miscellaneous Information for 17 Highview Drive 17 Sandwich Village, MA 02563 |
|
| Year Built | 1973 |
| Distance to Beach | 1 to 2 |
| Association Fee | 340 |
| Taxes | $3,290 /Yr |
Associate Information for 17 Highview Drive 17 Sandwich Village, MA 02563 |
|
|
Kathy Kelly
Sandwich Office 508-362-0537 kathy.kelly@compass.com Sandwich Office 116 Route 6A Sandwich, MA 02563 508-833-3333
|
|
|
Permalink: |
|
| Condo | Data |
|---|---|
| Units | 5,291 |
| Avg Price | $942,777 |
| Avg Days Listed | 123 |
| Total New Listings | 4 |
| House | Data |
|---|---|
| Units | 8,714 |
| Avg Price | $1,193,153 |
| Avg Days Listed | 110 |
| Total New Listings | 9 |
| Multi-Family | Data |
|---|---|
| Units | 1,828 |
| Avg Price | $1,347,426 |
| Avg Days Listed | 127 |
| Total New Listings | 0 |
For a more detailed market analyis one of our real estate agents can provide you with a full report.
| Address | Closing Date | List Price | Closing Price | % of List Price |
|---|---|---|---|---|
| 20 Water Street Sandwich, MA 02563 |
01/08/2025 | $1,750,000 | $1,650,000 | 94% |
| 15 Nauset Street Sandwich, MA 02563 |
01/08/2025 | $620,000 | $600,000 | 97% |
| 7 Abigails Way Sandwich, MA 02563 |
01/07/2025 | $735,000 | $745,000 | 101% |
| 8 Wayside Lane Sandwich, MA 02563 |
01/03/2025 | $724,900 | $720,000 | 99% |
| 15 Tupper Road Sandwich, MA 02563 |
12/30/2024 | $1,950 | $1,950 | 100% |
| 6 Kalmia Path Sandwich, MA 02563 |
12/24/2024 | $739,000 | $735,000 | 99% |
| 34 Sconset Circle Sandwich, MA 02563 |
12/23/2024 | $599,999 | $575,000 | 96% |
| 25 Chadwell Avenue Sandwich, MA 02563 |
12/19/2024 | $900,000 | $800,000 | 89% |
| 29 Powder Horn Way Sandwich, MA 02563 |
12/19/2024 | $600,000 | $585,000 | 98% |
| 5 Emilys Lane Sandwich, MA 02563 |
12/19/2024 | $895,000 | $852,500 | 95% |
| 5 Highview Drive Sandwich, MA 02563 |
12/19/2024 | $2,500 | $2,500 | 100% |
| 49 Southpoint Drive G Sandwich, MA 02563 |
12/18/2024 | $499,000 | $484,000 | 97% |
| 8 Jan Sebastian Drive Drive Sandwich, MA 02563 |
12/17/2024 | $2,200 | $2,200 | 100% |
| 93 Highview Drive Sandwich, MA 02563 |
12/16/2024 | $2,000 | $2,000 | 100% |
| 36 Race Lane Sandwich, MA 02563 |
12/12/2024 | $525,000 | $550,000 | 105% |
| 43 Chipman Road Sandwich, MA 02563 |
12/06/2024 | $649,000 | $700,000 | 108% |
| 3 Viburnum Circle Sandwich, MA 02563 |
12/05/2024 | $670,000 | $670,000 | 100% |
| 296 Meiggs-Backus Road Sandwich, MA 02563 |
12/05/2024 | $625,000 | $630,000 | 101% |
| 48 Wood Avenue Sandwich, MA 02563 |
12/02/2024 | $1,100,000 | $1,010,000 | 92% |
| 8 Jan Sebastian Drive Sandwich, MA 02563 |
12/01/2024 | $1,600 | $1,600 | 100% |
| 14 Bosuns Passage Sandwich, MA 02563 |
11/22/2024 | $735,000 | $729,000 | 99% |
| 0 Farmersville Road Sandwich, MA 02563 |
11/19/2024 | $1,749,000 | $1,111,243 | 64% |
| 17 Almy Avenue Sandwich, MA 02563 |
11/18/2024 | $569,000 | $550,000 | 97% |
| 15 Jan Sebastian Drive Sandwich, MA 02563 |
11/15/2024 | $315,000 | $250,000 | 79% |
| 62 Route 6A Sandwich, MA 02563 |
11/15/2024 | $624,000 | $600,000 | 96% |
| Previous | Next | Back |
| Listing: 1 of 1 | Updated 31 minutes ago |
Disclaimer: All data relating to real estate for sale on this page comes from the Broker Reciprocity (BR) of the Cape Cod & Islands Multiple Listing Service, Inc. Detailed information about real estate listings held by brokerage firms other than Kinlin Grover Compass include the name of the listing broker. Neither the listing company nor Kinlin Grover Compass shall be responsible for any typographical errors, misinformation, misprints and shall be held totally harmless. The Broker providing this data believes it to be correct, but advises interested parties to confirm any item before relying on it in a purchase decision. Copyright 2025 Cape Cod & Islands Multiple Listing Service, Inc. All rights reserved.
This site was last updated 12/16/2025. All properties are subject to prior sale, changes, or withdrawal.
Kinlin Grover Compass has chosen to display only certain towns and/or types or styles of properties. This site may not show all listings that are available through the Cape Cod & Islands Multiple Listing Service, Inc.
(CPASS11/U1850)