| Previous | Next | Back | 
| Listing: 1 of 1 | Updated 30 minutes ago | 
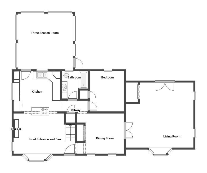
This charming Cape-style home, set on a private .51 acre lot, offers a delightful blend of comfort and character. With 2,044 square feet of living space on the main floors, it features 8 rooms, 3 bedrooms and 2 full baths, plus a finished lower level.You will love the wide pine floors that flow through many rooms. A custom kitchen, with a window seat and an island breakfast bar, perfect for morning coffee or casual meals. Adjacent to the kitchen, a cozy den featuring a wood fireplace and bow window, offering a warm and inviting space. The living room boasts built-ins and additional bow window, providing both charm and functionality. A sunny three-season porch and formal dining room offer ample space for gatherings. Step outside to discover an entertainer's paradise. The highlight is the sparkling inground pool, perfect for summer fun. Finished lower level with fireplace & walk out, provides room for hobbies, a play room or workshop. An oversized one-car garage & shed offer ample storage. With a new Title V to be installed, whole house generator, oil heat, & central air, this well-maintained home promises comfort in every season. Discover this private retreat today.
General Information for 102 Wildwood Road Brewster, MA 02631 | 
		|
| Town | Brewster | 
| Village | Brewster | 
| County | Barnstable | 
| Stories | 1 | 
| Style | Cape Cod | 
| SQFT | 2,812 | 
| Status | Available | 
| Listing Number | 22505022 (CCIMLS) | 
Rooms Information for 102 Wildwood Road Brewster, MA 02631 | 
		|
| Family Room | 18X18 Flooring: Wood Door(s): French Built-in Features Living Room Beamed Ceilings  | 
		
| Kitchen Features | 13X12 Countertop(s): Laminate Flooring: Wood Stove(s): Electric Kitchen Breakfast Bar Built-in Features Kitchen Island  | 
		
| Dining Room | 11X11 Flooring: Wood Closet Dining Room  | 
		
| Laundry | Laundry Room In Basement  | 
		
| Bedroom | 17X11 Flooring: Carpet Dressing Room Closet  | 
		
| Bedroom 1 | 17X11 Flooring: Carpet Dressing Room Closet  | 
		
| Bedroom 2 | 0X0 Flooring: Carpet Closet  | 
		
| Bedroom 3 | 11X10 Closet  | 
		
| Bedroom 4 | 0X0 | 
Interior Information for 102 Wildwood Road Brewster, MA 02631 | 
		|
| Basement | Finished Interior Entry Full  | 
		
| Interior Features | HU Cable TV Linen Closet  | 
		
| Heating | Hot Water | 
| Fireplace | Yes | 
| Appliances | Cooktop Washer Refrigerator Electric Range Electric Dryer Dishwasher  | 
		
Exterior Information for 102 Wildwood Road Brewster, MA 02631 | 
		|
| Lot Size | 0.51 acres | 
| Lot Description | Bike Path House of Worship Cleared  | 
		
| Construction | Clapboard Shingle Siding  | 
		
| Garage | 1 Car Garage | 
| Parking | Spaces: 4 | 
| Lot | Bike Path House of Worship Cleared  | 
		
| Sewer | Septic Tank | 
| Pool | In Ground | 
Neighborhood Information for 102 Wildwood Road Brewster, MA 02631 | 
		|
| Neighborhood Amenities | None | 
Schools information for 102 Wildwood Road Brewster, MA 02631 | 
			|
| Elementary | Nauset | 
| Middle | Nauset | 
| High | Nauset | 
| General Area Public, Private School and College Information | |
Miscellaneous Information for 102 Wildwood Road Brewster, MA 02631 | 
		|
| Year Built | 1971 | 
| Distance to Beach | 2 Plus | 
| Association Fee | 100 | 
| Taxes | $5,653 /Yr | 
Associate Information for 102 Wildwood Road Brewster, MA 02631 | 
				|
| 
						 
							Jan Pulit 
						Yarmouth Port Office 508-776-8210 jan.pulit@compass.com Yarmouth Port Office 927 Route 6A Yarmouth Port, MA 02675 508-362-3000  
							
						 | 
				|
| 
				
					
					 Permalink:  | 
		|
| Condo | Data | 
|---|---|
| Units | 6,608 | 
| Avg Price | $931,814 | 
| Avg Days Listed | 102 | 
| Total New Listings | 11 | 
| House | Data | 
|---|---|
| Units | 11,469 | 
| Avg Price | $1,242,279 | 
| Avg Days Listed | 89 | 
| Total New Listings | 19 | 
| Multi-Family | Data | 
|---|---|
| Units | 2,096 | 
| Avg Price | $1,284,837 | 
| Avg Days Listed | 110 | 
| Total New Listings | 0 | 
			
			
			For a more detailed market analyis one of our real estate agents can provide you with a full report.
| Address | Closing Date | List Price | Closing Price | % of List Price | 
|---|---|---|---|---|
| 1247 Long Pond Road  Brewster, MA 02631  | 
			01/09/2025 | $669,900 | $669,900 | 100% | 
| 98 Ebenezer Lane  Brewster, MA 02631  | 
			01/08/2025 | $675,000 | $701,000 | 104% | 
| 102 Woodview Drive  Brewster, MA 02631  | 
			01/07/2025 | $416,000 | $410,500 | 99% | 
| 925 Crowells Bog Road  Brewster, MA 02631  | 
			12/31/2024 | $675,000 | $640,000 | 95% | 
| 26 Granite State Court  Brewster, MA 02631  | 
			12/30/2024 | $1,000 | $1,000 | 100% | 
| 2016 Main Street  Brewster, MA 02631  | 
			12/24/2024 | $672,500 | $672,500 | 100% | 
| 51 Chilton Lane  Brewster, MA 02631  | 
			12/23/2024 | $384,900 | $380,000 | 99% | 
| 0 Robbins Hill  Road Rear Road  Brewster, MA 02631  | 
			12/23/2024 | $649,000 | $594,000 | 92% | 
| 44 Howland Circle  Brewster, MA 02631  | 
			12/20/2024 | $529,000 | $515,000 | 97% | 
| 180 Lower Road  Brewster, MA 02631  | 
			12/20/2024 | $622,500 | $575,000 | 92% | 
| 104 Highland Moors Drive  Brewster, MA 02631  | 
			12/20/2024 | $2,195,000 | $2,100,000 | 96% | 
| 3677 Main Street  Brewster, MA 02631  | 
			12/18/2024 | $369,000 | $364,500 | 99% | 
| 0 Run Hill Road  Brewster, MA 02631  | 
			12/18/2024 | $520,000 | $500,000 | 96% | 
| 185 Eaton Lane  Brewster, MA 02631  | 
			12/18/2024 | $399,999 | $399,999 | 100% | 
| 103 Trevor Lane  Brewster, MA 02631  | 
			12/13/2024 | $549,900 | $520,000 | 95% | 
| 1 Howland Circle  Brewster, MA 02631  | 
			12/13/2024 | $499,000 | $490,000 | 98% | 
| 120 Alden Drive  Brewster, MA 02631  | 
			12/11/2024 | $1,399,000 | $1,350,000 | 96% | 
| 86 Stone Ridge Road  Brewster, MA 02631  | 
			12/11/2024 | $699,000 | $722,000 | 103% | 
| 153 Tower Hill Circle  Brewster, MA 02631  | 
			12/11/2024 | $728,888 | $678,375 | 93% | 
| 12 Woodview Drive  Brewster, MA 02631  | 
			12/11/2024 | $419,900 | $410,000 | 98% | 
| 86 Eaton Lane  Brewster, MA 02631  | 
			12/04/2024 | $399,000 | $385,000 | 96% | 
| 981 Long Pond Road  Brewster, MA 02631  | 
			12/02/2024 | $860,000 | $860,981 | 100% | 
| 3667 Main Street  Brewster, MA 02631  | 
			12/02/2024 | $385,000 | $384,000 | 100% | 
| 76 Tracy Lane  Brewster, MA 02631  | 
			12/02/2024 | $750,000 | $762,500 | 102% | 
| 51 Linger Longer Cartway  Brewster, MA 02631  | 
			11/22/2024 | $1,195,000 | $1,195,000 | 100% | 
| Previous | Next | Back | 
| Listing: 1 of 1 | Updated 30 minutes ago | 
 Disclaimer: All data relating to real estate for sale on this page comes from the Broker Reciprocity (BR) of the Cape Cod & Islands Multiple Listing Service, Inc. Detailed information about real estate listings held by brokerage firms other than Kinlin Grover Compass include the name of the listing broker. Neither the listing company nor Kinlin Grover Compass shall be responsible for any typographical errors, misinformation, misprints and shall be held totally harmless. The Broker providing this data believes it to be correct, but advises interested parties to confirm any item before relying on it in a purchase decision. Copyright 2025 Cape Cod & Islands Multiple Listing Service, Inc. All rights reserved.
This site was last updated 11/04/2025. All properties are subject to prior sale, changes, or withdrawal.
Kinlin Grover Compass has chosen to display only certain towns and/or types or styles of properties. This site may not show all listings that are available through the Cape Cod & Islands Multiple Listing Service, Inc.
(CPASS16/U1Y7)