Previous  |  Next Return to Search Results    Revise Search
Listing: 77 of 200 (Limit Exceeded) Updated 23 minutes ago

0 Windsor Way Shirley, MA 01464

Land $2,999,000



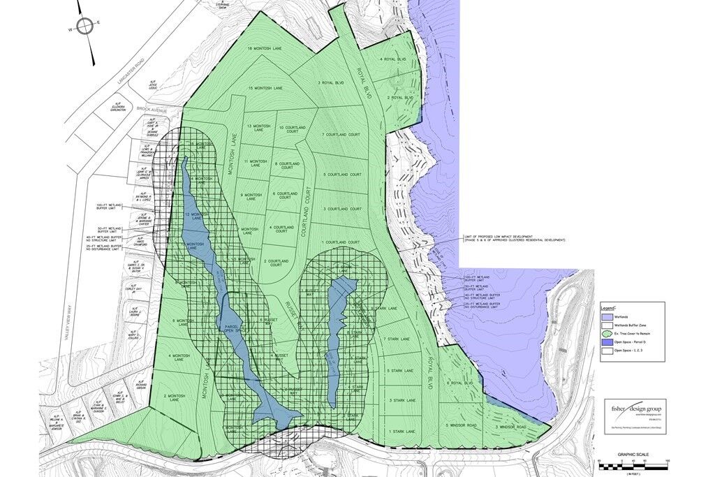
Remarkable opportunity. Remaining lots of 20-year-old subdivision for sale. Part of Apple Orchard Estates in Shirley. 48 lots on 30 acres had been approved and are being sold as one package with 13 acre Parcel K which is approved for an additional 100+ sewer connections (possible apartment building). Buyer will obtain new permits because wetlands have migrated since original approvals. Seller has a new plan for 37 lots on the 30 acres parcel that work with new wetland maps. See attached docs. Buyer will build roads with curbing, utilities and drainage. Utilities are located on Windsor Road. The 48 Lots are taxed as separate building lots and can be seen on the State GIS Viewer. Each lot gets its own tax bill from the Town of Shirley and pays a fee to Apple Orchard Estates HOA. Recent similar sales of homes in Shirley have approached $800,000. Much documentation is available. Buyers and/or their brokers must register with listing broker to access additional documentation.


General Information for 0 Windsor Way Shirley, MA 01464

Town Shirley
Village Shaker Village
County Middlesex
Status Available
Listing Number 73388435 (MLSPIN)

Rooms Information for 0 Windsor Way Shirley, MA 01464

Interior Information for 0 Windsor Way Shirley, MA 01464

Exterior Information for 0 Windsor Way Shirley, MA 01464

Lot Size 43.00 acres
Lot Description Rolling Slope
Wetlands
Sloped
Irregular Lot
Fill Needed
Cul-De-Sac
Lot Rolling Slope
Wetlands
Sloped
Irregular Lot
Fill Needed
Cul-De-Sac
Water Public
Nearby
Sewer Public Sewer
At Street
Nearby

Neighborhood Information for 0 Windsor Way Shirley, MA 01464

Neighborhood Amenities Sidewalks

Miscellaneous Information for 0 Windsor Way Shirley, MA 01464

Association Fee 0
Taxes $86,500 /Yr
Comp

Permalink:

Listing provided courtesy of hammond residential real estate

Market Snapshot as of December 14, 2025 (Last 30 days)

Condo Data
Units 5,358
Avg Price $941,718
Avg Days Listed 122
Total New Listings 1
House Data
Units 8,848
Avg Price $1,197,271
Avg Days Listed 108
Total New Listings 2
Multi-Family Data
Units 1,850
Avg Price $1,332,616
Avg Days Listed 126
Total New Listings 1

Average Price by Property Type
Units by Property Type
Average Days on Market by Property Type

Recent Home Sales In This Zip Code (01464)

For a more detailed market analyis one of our real estate agents can provide you with a full report.

Address Closing Date List Price Closing Price % of List Price

Request Information/Showing

Schedule a visit?  Yes    No
Save Property To Favorites
Map This Property
Driving Directions
 Previous  |  Next Return to Search Results    Revise Search
Listing: 77 of 200 (Limit Exceeded) Updated 23 minutes ago
Real Estate LogoThe property listing data and information set forth herein were provided to MLS Property Information Network, Inc. from third party sources, including sellers, lessors and public records, and were compiled by MLS Property Information Network, Inc. The property listing data and information are for the personal, non-commercial use of consumers having a good faith interest in purchasing or leasing listed properties of the type displayed to them and may not be used for any purpose other than to identify prospective properties which such consumers may have a good faith interest in purchasing or leasing. MLS Property Information Network, Inc. and its subscribers disclaim any and all representations and warranties as to the accuracy of the property listing data and information set forth herein. (AN3108/BB901996)