| Previous | Next | Return to Search Results Revise Search |
| Listing: 6 of 11 | Updated 35 minutes ago |
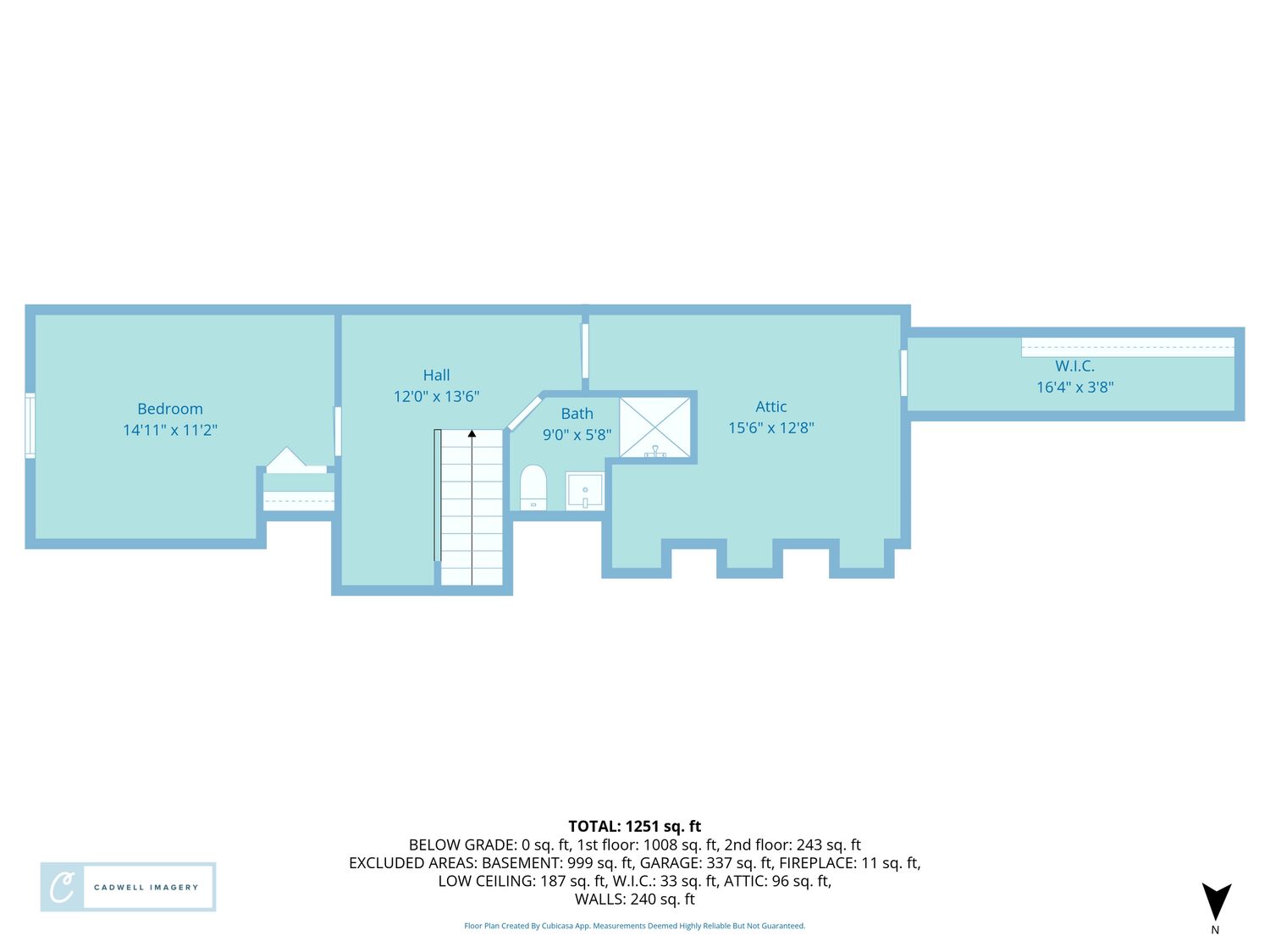
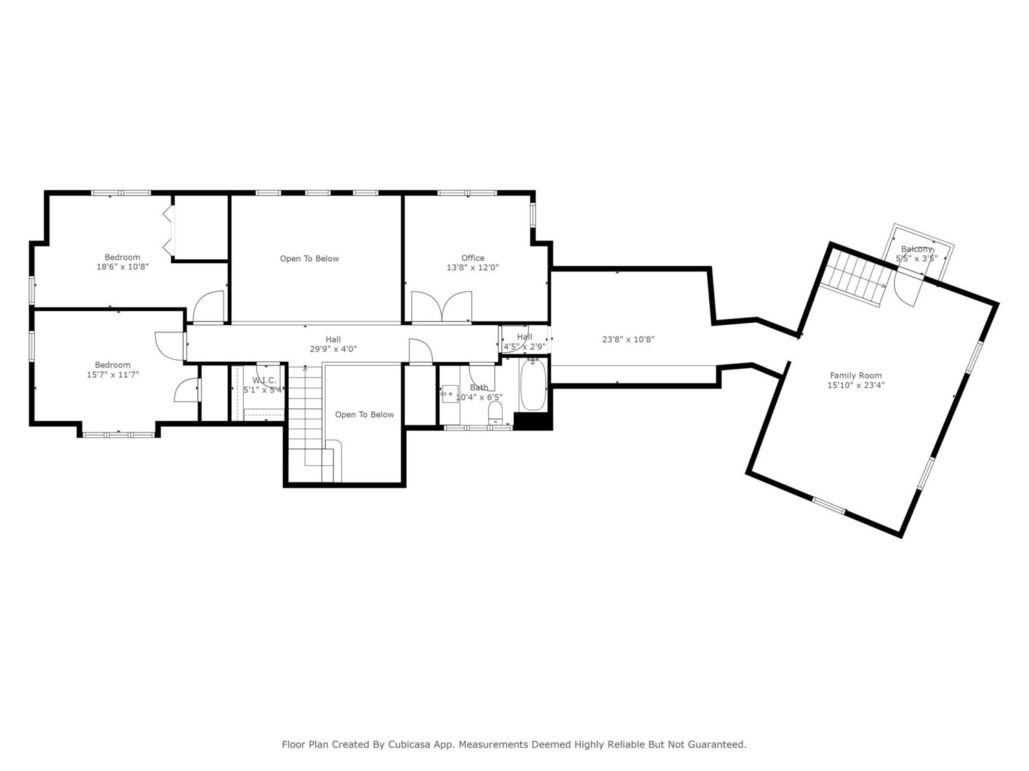
Inviting, spacious & comfortable across 3 finished floors describes this 'Cranberry' end unit in the Villages at Brookside as one of the few w/ a 2nd Garage Detached ! Well maintained, it offers the ease of one floor living with plenty of room for family and guests~ 2 private expansive decks overlook the 16th green of the Brookside Golf Course with sunset views from this elevated site. The vaulted ceiling living room & first floor ensuite bedroom have slider doors to the upper deck. The finished walkout lower level w/ slider door to ground level decking & an established hydrangea border has an additional full bath & 2 rooms providing for flexibility of use + storage. Sparkling wood floors greet you at the foyer & flow forward through the open layout to the beautiful view~ 2nd floor has a bedroom, full bath & spacious loft overlooking the living room. Off the foyer is a 1/2 bath, laundry closet & access to the attached garage & the sweet front porch. A well appointed kitchen w/nice neutral cabinetry & central island opens to additional first floor living space. This rare opportunity for a newer build in this vibrant community is enhanced by its private feel setting~
General Information for 16 Amberwood Court Bourne, MA 02532 |
|
| Town | Bourne |
| Village | Bourne |
| Subdivision | The Villages At Brookside |
| County | Barnstable |
| Stories | 3 |
| SQFT | 3,045 |
| Status | Available |
| Listing Number | 22504740 (CCIMLS) |
Rooms Information for 16 Amberwood Court Bourne, MA 02532 |
|
| Family Room | 0X0 Fireplace(s): Gas Flooring: Wood Door(s): Sliding Recessed Lighting View Cathedral Ceiling(s) Ceiling Fan(s) Dining Area |
| Kitchen Features | 0X0 Countertop(s): Block Flooring: Wood Stove(s): Gas Kitchen Kitchen Island Recessed Lighting |
| Dining Room | 0X0 |
| Laundry | Laundry Room |
| Bedroom | 0X0 Flooring: Carpet Door(s): Sliding Walk-In Closet(s) View Closet |
| Master Bath Features | Private Full Bath |
| Bedroom 1 | 0X0 Flooring: Carpet Door(s): Sliding Walk-In Closet(s) View Closet |
| Bedroom 2 | 0X0 Flooring: Carpet View Closet |
| Bedroom 3 | 0X0 |
| Bedroom 4 | 0X0 |
Interior Information for 16 Amberwood Court Bourne, MA 02532 |
|
| Basement | Finished Interior Entry Full |
| Interior Features | Recessed Lighting Linen Closet Interior Balcony |
| Fireplace | Yes |
| Appliances | Dishwasher Refrigerator Gas Range Microwave Gas Water Heater |
Exterior Information for 16 Amberwood Court Bourne, MA 02532 |
|
| Lot Description | Conservation Area Major Highway Near Golf Course Marina |
| Garage | 2 Car Garage |
| Parking | Spaces: 3 Guest |
| Lot | Conservation Area Major Highway Near Golf Course Marina |
| Sewer | Private Sewer |
| Exterior Features | Garden |
Neighborhood Information for 16 Amberwood Court Bourne, MA 02532 |
|
| Neighborhood Swimming Pool | Yes |
| Neighborhood Amenities | Common Area Maintenance Structure Snow Removal Trash Road Maintenance Pool Landscaping |
Schools information for 16 Amberwood Court Bourne, MA 02532 |
|
| Elementary | Bourne |
| Middle | Bourne |
| High | Bourne |
| General Area Public, Private School and College Information | |
Miscellaneous Information for 16 Amberwood Court Bourne, MA 02532 |
|
| Year Built | 2012 |
| Distance to Beach | 1 to 2 |
| Association Fee | 1295 |
| Taxes | $5,595 /Yr |
Associate Information for 16 Amberwood Court Bourne, MA 02532 |
|
|
Bridget Moylan
Falmouth Office 508-776-5771 508-776-5771 bridget.moylan@compass.com Falmouth Office 56 Scranton Ave Falmouth, MA 02540 508-548-6611
|
|
|
Permalink: |
|
| Condo | Data |
|---|---|
| Units | 6,269 |
| Avg Price | $927,650 |
| Avg Days Listed | 107 |
| Total New Listings | 7 |
| House | Data |
|---|---|
| Units | 10,762 |
| Avg Price | $1,209,050 |
| Avg Days Listed | 94 |
| Total New Listings | 22 |
| Multi-Family | Data |
|---|---|
| Units | 2,095 |
| Avg Price | $1,335,337 |
| Avg Days Listed | 113 |
| Total New Listings | 0 |
For a more detailed market analyis one of our real estate agents can provide you with a full report.
| Address | Closing Date | List Price | Closing Price | % of List Price |
|---|---|---|---|---|
| 49 Main Street C Bourne, MA 02532 |
01/07/2025 | $285,000 | $285,000 | 100% |
| 19 Summer Street Bourne, MA 02532 |
01/06/2025 | $499,900 | $500,000 | 100% |
| 42 Howard Avenue Bourne, MA 02532 |
12/20/2024 | $565,000 | $548,000 | 97% |
| 42-44 Washburn Street Bourne, MA 02532 |
12/20/2024 | $949,900 | $900,000 | 95% |
| 276 County Road Bourne, MA 02532 |
12/11/2024 | $849,000 | $829,900 | 98% |
| 12-A Cohasset Avenue Bourne, MA 02532 |
12/09/2024 | $499,900 | $480,000 | 96% |
| 54 Clarissa Joseph Road Bourne, MA 02532 |
12/03/2024 | $829,000 | $818,250 | 99% |
| 402 Village Drive Bourne, MA 02532 |
12/03/2024 | $325,000 | $322,500 | 99% |
| 9 Holly Hock Knoll Court Bourne, MA 02532 |
12/03/2024 | $739,000 | $715,000 | 97% |
| 6 Fabyan Way Bourne, MA 02532 |
11/29/2024 | $875,000 | $837,500 | 96% |
| 52 Winston Avenue Bourne, MA 02532 |
11/22/2024 | $475,000 | $335,000 | 71% |
| 40 Wilson Avenue Bourne, MA 02532 |
11/22/2024 | $399,000 | $400,000 | 100% |
| 49 Main Street D Bourne, MA 02532 |
11/22/2024 | $275,000 | $260,000 | 95% |
| 111 Clay Pond Road Bourne, MA 02532 |
11/20/2024 | $525,000 | $525,000 | 100% |
| 5 Spindrift Lane Bourne, MA 02532 |
11/19/2024 | $2,000 | $2,000 | 100% |
| 217 County Road Bourne, MA 02532 |
11/15/2024 | $537,000 | $525,000 | 98% |
| 8 Grissom Lane Bourne, MA 02532 |
11/14/2024 | $625,000 | $600,000 | 96% |
| 303 Village Drive 303 Bourne, MA 02532 |
11/12/2024 | $299,900 | $295,000 | 98% |
| 10 Blue Meadow Court Bourne, MA 02532 |
11/08/2024 | $629,500 | $620,000 | 98% |
| 17 Buzzards Bay Avenue Bourne, MA 02532 |
11/08/2024 | $325,000 | $335,000 | 103% |
| 8 Harrison Avenue Bourne, MA 02532 |
11/05/2024 | $500,000 | $437,500 | 88% |
| 14 Cohasset Avenue Bourne, MA 02532 |
10/31/2024 | $298,000 | $273,200 | 92% |
| 3 Amberwood Court 3 Bourne, MA 02532 |
10/31/2024 | $775,000 | $760,000 | 98% |
| 16 Old Dam Road Bourne, MA 02532 |
10/29/2024 | $925,000 | $905,000 | 98% |
| 12 Ryder Street Wareham, MA 02532 |
10/29/2024 | $529,000 | $500,000 | 95% |
| Previous | Next | Return to Search Results Revise Search |
| Listing: 6 of 11 | Updated 35 minutes ago |
Disclaimer: All data relating to real estate for sale on this page comes from the Broker Reciprocity (BR) of the Cape Cod & Islands Multiple Listing Service, Inc. Detailed information about real estate listings held by brokerage firms other than Kinlin Grover Compass include the name of the listing broker. Neither the listing company nor Kinlin Grover Compass shall be responsible for any typographical errors, misinformation, misprints and shall be held totally harmless. The Broker providing this data believes it to be correct, but advises interested parties to confirm any item before relying on it in a purchase decision. Copyright 2025 Cape Cod & Islands Multiple Listing Service, Inc. All rights reserved.
This site was last updated 11/22/2025. All properties are subject to prior sale, changes, or withdrawal.
Kinlin Grover Compass has chosen to display only certain towns and/or types or styles of properties. This site may not show all listings that are available through the Cape Cod & Islands Multiple Listing Service, Inc.
(CPASS9/U2506)