Previous  |  Next Back   
Listing: 1 of 1 Updated 6 minutes ago

9 Charlton Street Oxford, MA 01540

1bd. 1fb. 2pb. Multi-Family $349,900



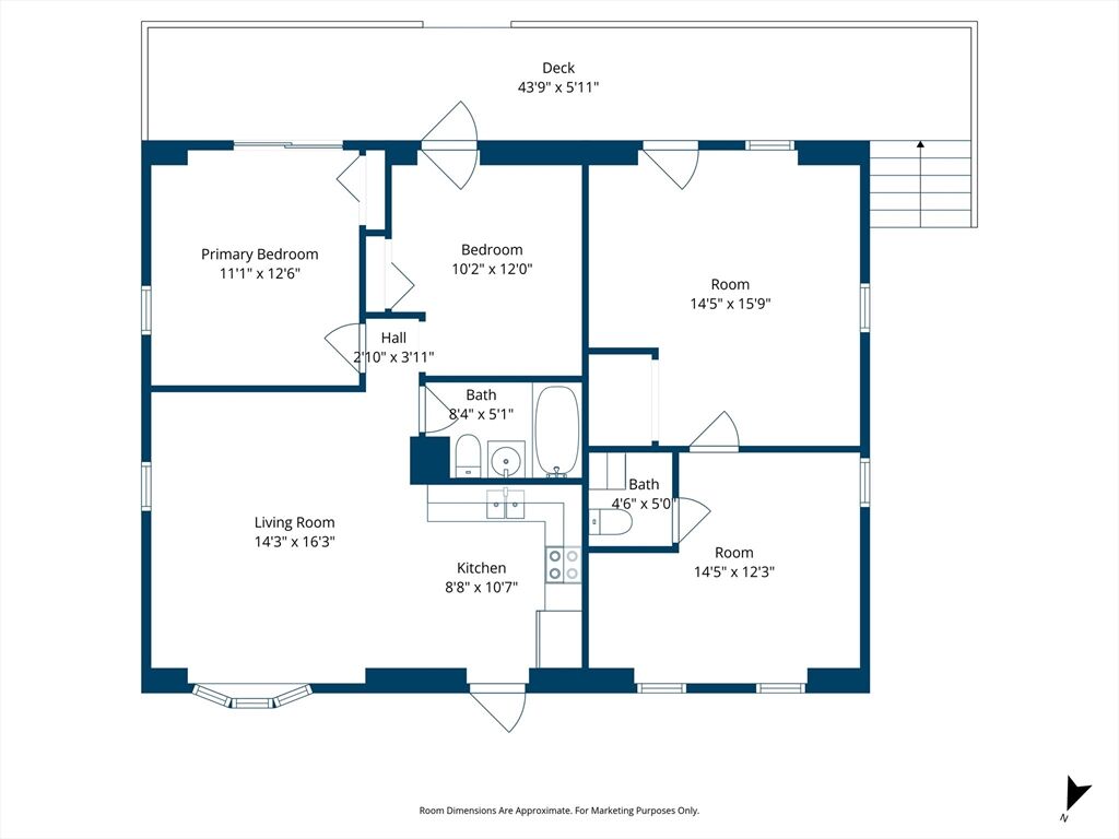
Unlock the potential of this versatile property, offering the best of single-level living and commercial revenue. Located conveniently close to all of Oxford's local amenities and major routes, this is a prime investment. The residential side features a bright and sunny living room. The kitchen provides ample cabinet storage, leading to two comfortable bedrooms, each with a closet, and a full bathroom with a tub/shower. The dedicated commercial side is ready for business, currently configured with a functional workspace, including a dog wash station and a convenient half bathroom. Outside, the back yard is fully fenced in, offering excellent utility and potential. Whether you're looking to run a business from home, generate rental income, or launch a dedicated commercial venture, this is an opportunity you can't afford to miss! *Brand new septic installed 2025 *Easy access to Rt 395, 290, 90 146, & 20! *Schedule your showing today!


General Information for 9 Charlton Street Oxford, MA 01540

Town Oxford
County Worcester
Stories 2
SQFT 1,120
Status Available
Listing Number 73458608 (MLSPIN)

Rooms Information for 9 Charlton Street Oxford, MA 01540

Laundry Washer Hookup

Interior Information for 9 Charlton Street Oxford, MA 01540

Interior Features Bathroom With Tub & Shower
Living Room
Kitchen
Carpet
Laminate
Heating Electric
Cooling None
Appliances Range
Refrigerator

Exterior Information for 9 Charlton Street Oxford, MA 01540

Lot Size 0.26 acres
Lot Description Cleared
Level
Construction Frame
Parking Spaces: 6
Paved Drive
Off Street
Stone/Gravel
Paved
Lot Cleared
Level
Water Public
Sewer Private Sewer
Exterior Features Rain Gutters
Fenced

Neighborhood Information for 9 Charlton Street Oxford, MA 01540

Neighborhood Amenities Public Transportation
Shopping
Park
Walk/Jog Trails
Highway Access
Public School

Miscellaneous Information for 9 Charlton Street Oxford, MA 01540

Year Built 1963
Association Fee 0
Taxes $3,438 /Yr
Comp

Permalink:

Listing provided courtesy of lamacchia realty, inc

Market Snapshot as of December 3, 2025 (Last 30 days)

Condo Data
Units 5,755
Avg Price $928,644
Avg Days Listed 116
Total New Listings 0
House Data
Units 9,780
Avg Price $1,199,389
Avg Days Listed 102
Total New Listings 11
Multi-Family Data
Units 1,964
Avg Price $1,350,114
Avg Days Listed 121
Total New Listings 1

Average Price by Property Type
Units by Property Type
Average Days on Market by Property Type

Recent Home Sales In This Zip Code (01540)

For a more detailed market analyis one of our real estate agents can provide you with a full report.

Address Closing Date List Price Closing Price % of List Price

Request Information/Showing

Schedule a visit?  Yes    No
Save Property To Favorites
Map This Property
Driving Directions
 Previous  |  Next Back   
Listing: 1 of 1 Updated 6 minutes ago
Real Estate LogoThe property listing data and information set forth herein were provided to MLS Property Information Network, Inc. from third party sources, including sellers, lessors and public records, and were compiled by MLS Property Information Network, Inc. The property listing data and information are for the personal, non-commercial use of consumers having a good faith interest in purchasing or leasing listed properties of the type displayed to them and may not be used for any purpose other than to identify prospective properties which such consumers may have a good faith interest in purchasing or leasing. MLS Property Information Network, Inc. and its subscribers disclaim any and all representations and warranties as to the accuracy of the property listing data and information set forth herein. (AN8507/TM323786)