Previous  |  Next Back   
Listing: 1 of 1 Updated 8 minutes ago

856 Main Street Reading, MA 01867

Multi-Family $924,900



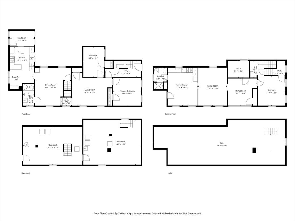
Often admired two-family home on an amazing elevated lot. This is a perfect opportunity for a multi-generational family, investment property or simply used as an expansive single family. This stately home has been meticulously maintained with many updates. Close to Readings vibrant downtown, Commuter Rail and Reading's award winning library. Convenient to the Birch Meadow complex where you will find the Birch Meadow Elementary School, Coolidge Middle School, Reading Memorial High School and the Burbank YMCA. The expansive yard offers lots of opportunity for outdoor enjoyment with a separate fenced-in dog area and a newly paved driveway. Both units have been Certified Deleaded (see attached). Each unit has separately metered gas and electric. Truly a great and solid home offering flexible living options.


General Information for 856 Main Street Reading, MA 01867

Town Reading
County Middlesex
Stories 2
SQFT 2,191
Status Available
Listing Number 73454120 (MLSPIN)

Rooms Information for 856 Main Street Reading, MA 01867

Laundry Gas Dryer Hookup
Washer Hookup

Interior Information for 856 Main Street Reading, MA 01867

Basement Full
Interior Entry
Concrete
Unfinished
Interior Features Ceiling Fan(s)
Walk-Up Attic
Cathedral/Vaulted Ceilings
Crown Molding
Upgraded Countertops
Laundry Room
Lead Certification Available
Bathroom with Shower Stall
Living Room
Dining Room
Kitchen
Mudroom
Tile
Vinyl
Hardwood
Heating Central
Baseboard
Hot Water
Natural Gas
Unit Control
Cooling Heat Pump
Multi Units
Unit Control
Central Air

Exterior Information for 856 Main Street Reading, MA 01867

Lot Size 0.62 acres
Lot Description Wooded
Sloped
Construction Frame
Parking Spaces: 4
Paved Drive
Off Street
Paved
Lot Wooded
Sloped
Water Public
Sewer Public Sewer
Exterior Features Rain Gutters
Stone Wall
Other
Fenced

Neighborhood Information for 856 Main Street Reading, MA 01867

Neighborhood Amenities Public Transportation
Shopping
Tennis Court(s)
Park
Walk/Jog Trails
Medical Facility
Bike Path
Conservation Area
Highway Access
House of Worship
Private School
Public School
T-Station
Sidewalks

Schools information for 856 Main Street Reading, MA 01867

Elementary Call Supt.
Middle Call Supt.
High Rmhs
General Area Public, Private School and College Information

Miscellaneous Information for 856 Main Street Reading, MA 01867

Year Built 1860
Association Fee 0
Taxes $6,759 /Yr
Comp

Permalink:

Listing provided courtesy of

Market Snapshot as of November 28, 2025 (Last 30 days)

Condo Data
Units 5,987
Avg Price $931,284
Avg Days Listed 113
Total New Listings 5
House Data
Units 10,183
Avg Price $1,214,529
Avg Days Listed 100
Total New Listings 10
Multi-Family Data
Units 2,021
Avg Price $1,360,010
Avg Days Listed 118
Total New Listings 1

Average Price by Property Type
Units by Property Type
Average Days on Market by Property Type

Recent Home Sales In This Zip Code (01867)

For a more detailed market analyis one of our real estate agents can provide you with a full report.

Address Closing Date List Price Closing Price % of List Price

Request Information/Showing

Schedule a visit?  Yes    No
Save Property To Favorites
Map This Property
Driving Directions
 Previous  |  Next Back   
Listing: 1 of 1 Updated 8 minutes ago
Real Estate LogoThe property listing data and information set forth herein were provided to MLS Property Information Network, Inc. from third party sources, including sellers, lessors and public records, and were compiled by MLS Property Information Network, Inc. The property listing data and information are for the personal, non-commercial use of consumers having a good faith interest in purchasing or leasing listed properties of the type displayed to them and may not be used for any purpose other than to identify prospective properties which such consumers may have a good faith interest in purchasing or leasing. MLS Property Information Network, Inc. and its subscribers disclaim any and all representations and warranties as to the accuracy of the property listing data and information set forth herein. (AN8712/TM305137)