Previous  |  Next Back   
Listing: 1 of 1 Updated 27 minutes ago

601 Flat Hill Rd Lunenburg, MA 01462

Single Family $424,900



Builder's original home, then current family has owned for almost 50 years. Homes built like this, on this lot and in this location rarely come on the market. *Needs heavy cosmetics, some repairs, landscaping/tree work, But many updates done over the years Spacious Cape design with large rooms throughout. 4 bedrooms, 2 full baths with tubs. Inviting 19' living room with fireplace. Big bedrooms. Skylights. Kitchen with greenhouse box window, SS appliances, nice cabinets, and solid surface counters. Entertaining open floor plan, 13' dining room with atrium doors to wood deck overlooking almost One Acre of beautiful, wooded privacy. Wow! 21' lower-level family/game room with wet bar and custom fieldstone fireplace with wood stove. Heated 14' workshop, Oversized 24'd garage. Large wood/storage shed/lean-to. Updates of various ages over the years; roof, 200 amp electrical, heating, windows, kitchen, doors. Land of Many lakes, Shirley, Whalom, Hickory Hills. Golf, tennis, hiking & more.


General Information for 601 Flat Hill Rd Lunenburg, MA 01462

Town Lunenburg
County Worcester
Style Cape
SQFT 1,739
Status Available
Listing Number 73452836 (MLSPIN)

Rooms Information for 601 Flat Hill Rd Lunenburg, MA 01462

Laundry In Basement
Electric Dryer Hookup
Washer Hookup
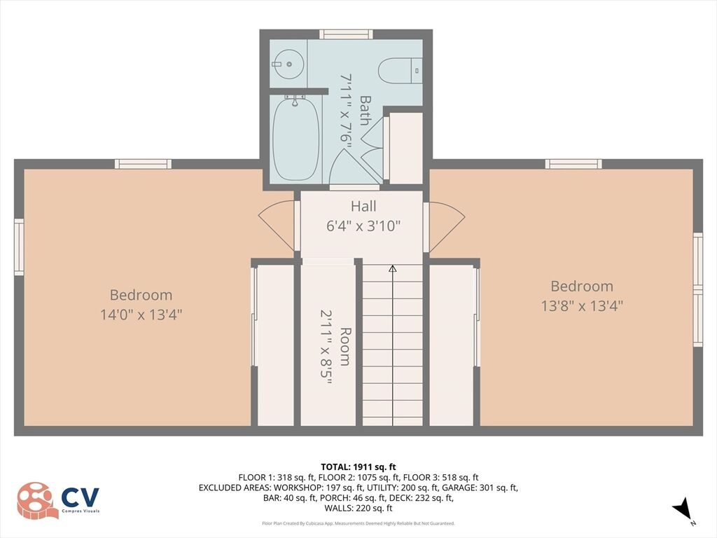
Bedroom 2 9X11
Bedroom 3 13X14
Skylight
Closet - Double
Bedroom 4 13X14
Skylight
Closet - Double

Interior Information for 601 Flat Hill Rd Lunenburg, MA 01462

Basement Full
Partially Finished
Interior Entry
Garage Access
Interior Features Storage
Wet Bar
Plywood
Tile
Vinyl
Carpet
Concrete
Laminate
Heating Baseboard
Oil
Cooling Window Unit(s)
Fireplace 2
Handicapped No
Appliances Water Heater
Range
Dishwasher
Microwave
Refrigerator
Dryer
Range Hood

Exterior Information for 601 Flat Hill Rd Lunenburg, MA 01462

Lot Size 0.93 acres
Lot Description Wooded
Easements
Gentle Sloping
Level
Other
Construction Frame
Garage 1 Car Garage
Parking Spaces: 7
Attached
Under
Storage
Garage Faces Side
Paved Drive
Shared Driveway
Stone/Gravel
Paved
Lot Wooded
Easements
Gentle Sloping
Level
Other
Water Private
Sewer Private Sewer
Exterior Features Porch
Deck - Wood
Storage
Fenced Yard
Fenced/Enclosed
Fenced

Neighborhood Information for 601 Flat Hill Rd Lunenburg, MA 01462

Neighborhood Amenities Pool
Tennis Court(s)
Park
Walk/Jog Trails
Stable(s)
Golf
Bike Path
Conservation Area
Marina
Public School

Miscellaneous Information for 601 Flat Hill Rd Lunenburg, MA 01462

Year Built 1973
Association Fee 0
Taxes $6,057 /Yr
Comp

Permalink:

Listing provided courtesy of cuddy real estate

Market Snapshot as of November 17, 2025 (Last 30 days)

Condo Data
Units 6,507
Avg Price $931,616
Avg Days Listed 105
Total New Listings 0
House Data
Units 11,251
Avg Price $1,217,895
Avg Days Listed 92
Total New Listings 14
Multi-Family Data
Units 2,158
Avg Price $1,314,711
Avg Days Listed 110
Total New Listings 1

Average Price by Property Type
Units by Property Type
Average Days on Market by Property Type

Recent Home Sales In This Zip Code (01462)

For a more detailed market analyis one of our real estate agents can provide you with a full report.

Address Closing Date List Price Closing Price % of List Price

Request Information/Showing

Schedule a visit?  Yes    No
Save Property To Favorites
Map This Property
Driving Directions
 Previous  |  Next Back   
Listing: 1 of 1 Updated 27 minutes ago
Real Estate LogoThe property listing data and information set forth herein were provided to MLS Property Information Network, Inc. from third party sources, including sellers, lessors and public records, and were compiled by MLS Property Information Network, Inc. The property listing data and information are for the personal, non-commercial use of consumers having a good faith interest in purchasing or leasing listed properties of the type displayed to them and may not be used for any purpose other than to identify prospective properties which such consumers may have a good faith interest in purchasing or leasing. MLS Property Information Network, Inc. and its subscribers disclaim any and all representations and warranties as to the accuracy of the property listing data and information set forth herein. (AN6294/BB902735)