Previous  |  Next Back   
Listing: 1 of 1 Updated just seconds ago

58 Colburn Rd Charlton, MA 01507

Single Family $389,900


Open House: -

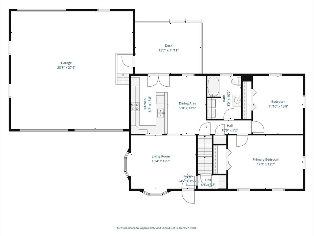
This one-level home is situated on over 1.26 acres in Charlton! The home has 2 bedrooms but the septic is designed for 3. Looking for a home to downsize in or grow into? This could be it! An oversized 2-car garage attached to the home is perfect for that hobby enthusiast or for storage. Entering in the front door, you have a spacious living room with carpeting and a ceiling fan. There is great access to the right of the front door to the attic space which could be finished for additional square footage. The kitchen has been upgraded with custom cabinetry and solid surface counter space. The dining area is a good size too. There is a slider overlooking a nice deck into the backyard. The one bathroom has your washer/dryer along with a tub and shower. There are 2 good-sized bedrooms. One has carpeting and the other one has laminate flooring. There is an additional shed in the backyard for storage as well. And if you wanted an oversized garage, you got it! OFFER DEADLINE 11/16 at 5 p.m.


General Information for 58 Colburn Rd Charlton, MA 01507

Town Charlton
County Worcester
Style Ranch
SQFT 1,120
Status Available
Listing Number 73453310 (MLSPIN)

Rooms Information for 58 Colburn Rd Charlton, MA 01507

Laundry Electric Dryer Hookup
Washer Hookup
First Floor
Master Bath Features No
Bedroom 2 Ceiling Fan(s)
Flooring - Laminate

Interior Information for 58 Colburn Rd Charlton, MA 01507

Basement Full
Interior Entry
Bulkhead
Radon Remediation System
Concrete
Unfinished
Interior Features Internet Available - Unknown
Vinyl
Carpet
Laminate
Hardwood
Heating Baseboard
Oil
Cooling None
Appliances Water Heater
Tankless Water Heater
Range
Microwave
Refrigerator
Washer
Dryer
Water Treatment

Exterior Information for 58 Colburn Rd Charlton, MA 01507

Lot Size 1.26 acres
Lot Description Level
Construction Frame
Garage 2 Car Garage
Parking Spaces: 4
Attached
Paved Drive
Off Street
Paved
Lot Level
Water Private
Sewer Private Sewer
Exterior Features Deck - Wood
Rain Gutters
Storage
Screens
Garden

Neighborhood Information for 58 Colburn Rd Charlton, MA 01507

Schools information for 58 Colburn Rd Charlton, MA 01507

Elementary Charlton Elementary
Middle Charlton Middle
High Shepherd Hill
General Area Public, Private School and College Information

Miscellaneous Information for 58 Colburn Rd Charlton, MA 01507

Year Built 1965
Association Fee 0
Taxes $3,155 /Yr
Comp

Permalink:

Listing provided courtesy of premeer real estate inc.

Market Snapshot as of November 14, 2025 (Last 30 days)

Condo Data
Units 6,621
Avg Price $928,746
Avg Days Listed 102
Total New Listings 0
House Data
Units 11,476
Avg Price $1,216,894
Avg Days Listed 90
Total New Listings 9
Multi-Family Data
Units 2,175
Avg Price $1,311,190
Avg Days Listed 109
Total New Listings 0

Average Price by Property Type
Units by Property Type
Average Days on Market by Property Type

Recent Home Sales In This Zip Code (01507)

For a more detailed market analyis one of our real estate agents can provide you with a full report.

Address Closing Date List Price Closing Price % of List Price

Request Information/Showing

Schedule a visit?  Yes    No
Save Property To Favorites
Map This Property
Driving Directions
 Previous  |  Next Back   
Listing: 1 of 1 Updated just seconds ago
Real Estate LogoThe property listing data and information set forth herein were provided to MLS Property Information Network, Inc. from third party sources, including sellers, lessors and public records, and were compiled by MLS Property Information Network, Inc. The property listing data and information are for the personal, non-commercial use of consumers having a good faith interest in purchasing or leasing listed properties of the type displayed to them and may not be used for any purpose other than to identify prospective properties which such consumers may have a good faith interest in purchasing or leasing. MLS Property Information Network, Inc. and its subscribers disclaim any and all representations and warranties as to the accuracy of the property listing data and information set forth herein. (AN0998/K8001599)