Previous  |  Next Back   
Listing: 1 of 1 Updated 52 minutes ago

53 Chestnut St Hanover, MA 02339

Single Family $899,900



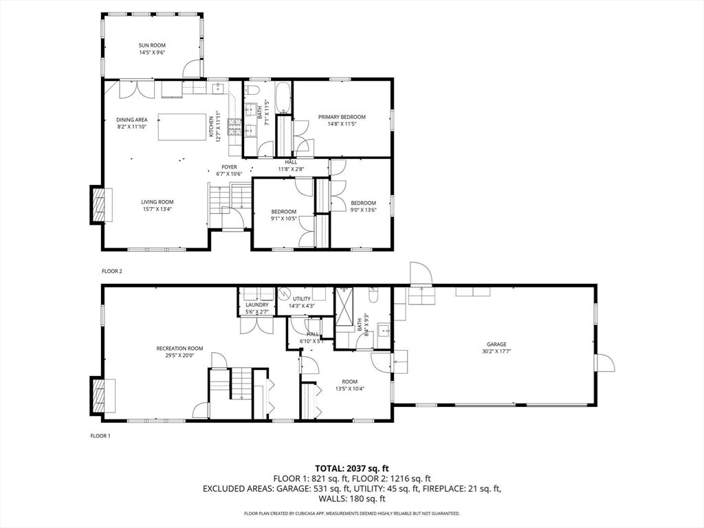
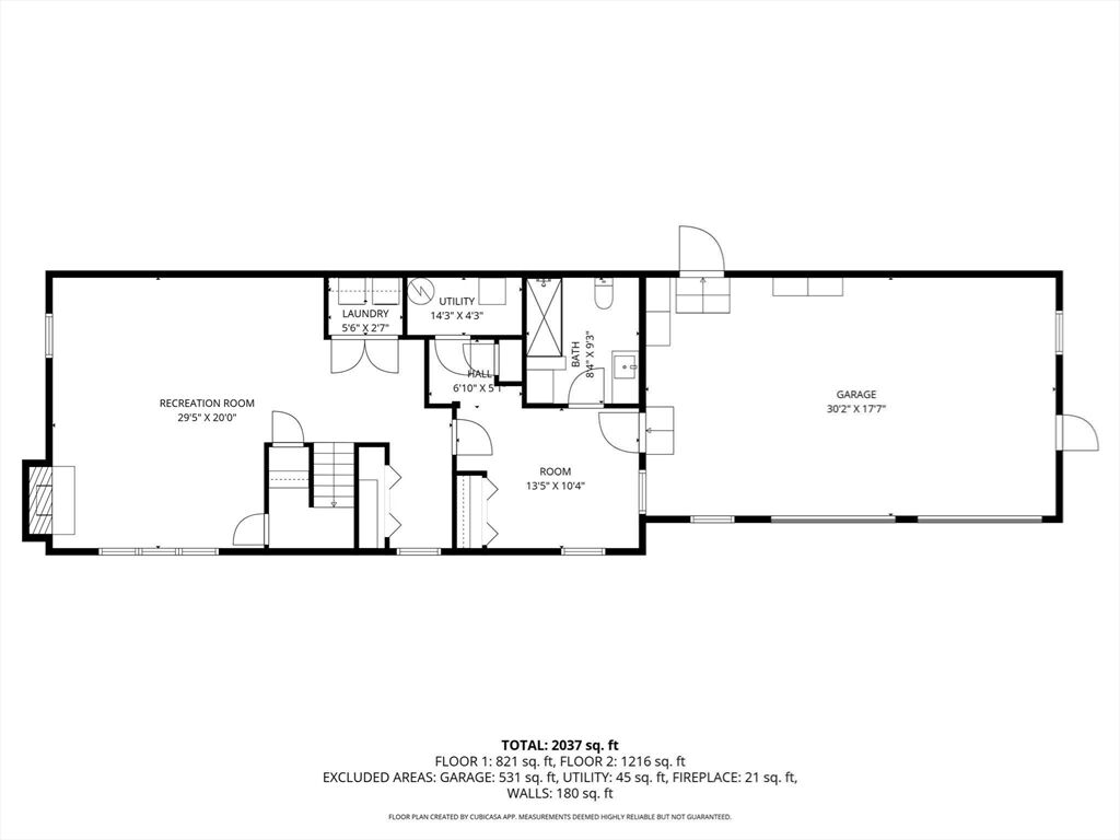
Rare opportunity to own a completely renovated home set on a beautifully landscaped level lot in a sought-after Hanover neighborhood. This energy-efficient three bedroom, two bath offers a bright, open layout with cathedral ceilings, hardwood floors, recessed lighting and exceptional craftsmanship throughout. The sun-filled living room with a new gas fireplace (October, 2025) opens to a designer kitchen with white shaker cabinets, quartzite counters, tiled backsplash, center island, and stainless appliances. A lovely sunroom overlooks the private yard with all-new hardscape and softscape landscaping. The finished lower level adds a spacious family room, full modern bath and laundry. The entire home was renovated in 2024/2025! New roof, septic, heating/cooling, and a two-car garage was added. Not your average split, you have to see it to believe it. Convenient to shopping, restaurants, and highway access. An exceptional, move-in-ready home!


General Information for 53 Chestnut St Hanover, MA 02339

Town Hanover
County Plymouth
Style Raised Ranch
Split Entry
SQFT 2,037
Status Available
Listing Number 73452209 (MLSPIN)

Rooms Information for 53 Chestnut St Hanover, MA 02339

Laundry In Basement
Electric Dryer Hookup
Washer Hookup
Master Bath Features No
Bedroom 2 10X9
Closet
Flooring - Hardwood
Recessed Lighting
Bedroom 3 13X9
Closet
Flooring - Hardwood
Recessed Lighting

Interior Information for 53 Chestnut St Hanover, MA 02339

Basement Full
Finished
Garage Access
Interior Features Recessed Lighting
Closet
Sun Room
Entry Hall
Tile
Hardwood
Flooring - Hardwood
Laminate
Heating Baseboard
Natural Gas
Cooling Central Air
Fireplace 2
Appliances Range
Dishwasher
Disposal
Microwave
Refrigerator

Exterior Information for 53 Chestnut St Hanover, MA 02339

Lot Size 0.70 acres
Construction Frame
Garage 2 Car Garage
Parking Spaces: 4
Attached
Garage Door Opener
Paved Drive
Paved
Water Public
Sewer Private Sewer
Exterior Features Patio
Rain Gutters
Storage
Sprinkler System

Neighborhood Information for 53 Chestnut St Hanover, MA 02339

Neighborhood Amenities Shopping
Tennis Court(s)
Park
Walk/Jog Trails
Stable(s)
Medical Facility
Highway Access
Public School

Schools information for 53 Chestnut St Hanover, MA 02339

Elementary Cedar/Center
Middle Hanover Middle
High Hanover High
General Area Public, Private School and College Information

Miscellaneous Information for 53 Chestnut St Hanover, MA 02339

Year Built 1967
Association Fee 0
Taxes $6,949 /Yr
Comp

Permalink:

Listing provided courtesy of

Market Snapshot as of November 13, 2025 (Last 30 days)

Condo Data
Units 6,611
Avg Price $928,957
Avg Days Listed 103
Total New Listings 0
House Data
Units 11,461
Avg Price $1,217,630
Avg Days Listed 90
Total New Listings 15
Multi-Family Data
Units 2,166
Avg Price $1,310,420
Avg Days Listed 109
Total New Listings 0

Average Price by Property Type
Units by Property Type
Average Days on Market by Property Type

Recent Home Sales In This Zip Code (02339)

For a more detailed market analyis one of our real estate agents can provide you with a full report.

Address Closing Date List Price Closing Price % of List Price

Request Information/Showing

Schedule a visit?  Yes    No
Save Property To Favorites
Map This Property
Driving Directions
 Previous  |  Next Back   
Listing: 1 of 1 Updated 52 minutes ago
Real Estate LogoThe property listing data and information set forth herein were provided to MLS Property Information Network, Inc. from third party sources, including sellers, lessors and public records, and were compiled by MLS Property Information Network, Inc. The property listing data and information are for the personal, non-commercial use of consumers having a good faith interest in purchasing or leasing listed properties of the type displayed to them and may not be used for any purpose other than to identify prospective properties which such consumers may have a good faith interest in purchasing or leasing. MLS Property Information Network, Inc. and its subscribers disclaim any and all representations and warranties as to the accuracy of the property listing data and information set forth herein. (AN8777/CN206844)