Previous  |  Next Back   
Listing: 1 of 1 Updated 43 minutes ago

48 Cordis Street Wakefield, MA 01880

1bd. 2fb. 3pb. Single Family $945,000


Open House: -
Open House: -

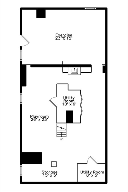
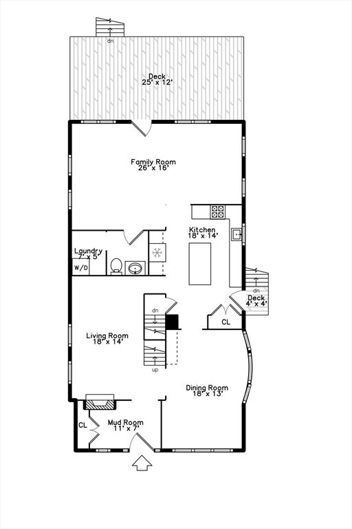
Home for the Holidays! Phenomenal expanded Cape on a perfect level fenced in yard!! Moments from Lake Quannapowitt. A 254 Acre body of water with a 3.2 mile trail. This 3 bedroom home with wonderful entertaining space both inside and out is waiting for you!! Incredible Family Room with direct access to an equally sizable deck for out door dining, reading, or just relaxing and enjoying a beautiful New England afternoon. Finished area in the lower level for Office, Exercise room and Recreational room. Storage galore with multiple deep closets. Laundry conveniently located on the first floor. Minutes to Rte 128. and schools.


General Information for 48 Cordis Street Wakefield, MA 01880

Town Wakefield
County Middlesex
Style Cape
Contemporary
SQFT 3,004
Status Available
Listing Number 73449428 (MLSPIN)

Rooms Information for 48 Cordis Street Wakefield, MA 01880

Laundry Main Level
First Floor
Master Bath Features Yes
Bedroom 2 12X13
Bedroom 3 10X13

Interior Information for 48 Cordis Street Wakefield, MA 01880

Basement Full
Finished
Interior Entry
Bulkhead
Interior Features Play Room
Office
Exercise Room
Hardwood
Flooring - Wall to Wall Carpet
Laminate
Heating Central
Baseboard
Cooling Window Unit(s)
Heat Pump
Fireplace 1
Appliances Range
Oven
Dishwasher
Disposal
Refrigerator
Freezer
Washer
Dryer

Exterior Information for 48 Cordis Street Wakefield, MA 01880

Lot Size 0.16 acres
Lot Description Level
Construction Frame
Parking Spaces: 3
Paved Drive
Off Street
Tandem
Lot Level
Water Public
Sewer Public Sewer
Exterior Features Deck

Neighborhood Information for 48 Cordis Street Wakefield, MA 01880

Schools information for 48 Cordis Street Wakefield, MA 01880

Elementary Harris M. Dolbeare
Middle
High Wakefield Mem. High School
General Area Public, Private School and College Information

Miscellaneous Information for 48 Cordis Street Wakefield, MA 01880

Year Built 1925
Association Fee 0
Taxes $10,158 /Yr
Comp

Permalink:

Listing provided courtesy of coldwell banker realty - newton

Market Snapshot as of November 1, 2025 (Last 30 days)

Condo Data
Units 6,804
Avg Price $929,807
Avg Days Listed 100
Total New Listings 9
House Data
Units 11,738
Avg Price $1,242,549
Avg Days Listed 88
Total New Listings 23
Multi-Family Data
Units 2,143
Avg Price $1,281,617
Avg Days Listed 109
Total New Listings 1

Average Price by Property Type
Units by Property Type
Average Days on Market by Property Type

Recent Home Sales In This Zip Code (01880)

For a more detailed market analyis one of our real estate agents can provide you with a full report.

Address Closing Date List Price Closing Price % of List Price

Request Information/Showing

Schedule a visit?  Yes    No
Save Property To Favorites
Map This Property
Driving Directions
 Previous  |  Next Back   
Listing: 1 of 1 Updated 43 minutes ago
Real Estate LogoThe property listing data and information set forth herein were provided to MLS Property Information Network, Inc. from third party sources, including sellers, lessors and public records, and were compiled by MLS Property Information Network, Inc. The property listing data and information are for the personal, non-commercial use of consumers having a good faith interest in purchasing or leasing listed properties of the type displayed to them and may not be used for any purpose other than to identify prospective properties which such consumers may have a good faith interest in purchasing or leasing. MLS Property Information Network, Inc. and its subscribers disclaim any and all representations and warranties as to the accuracy of the property listing data and information set forth herein. (AN6227/BB982337)