Previous  |  Next Back   
Listing: 1 of 1 Updated 26 minutes ago

46-48 Swanton Street Winchester, MA 01890

1bd. 3fb. 6pb. Multi-Family $1,100,000



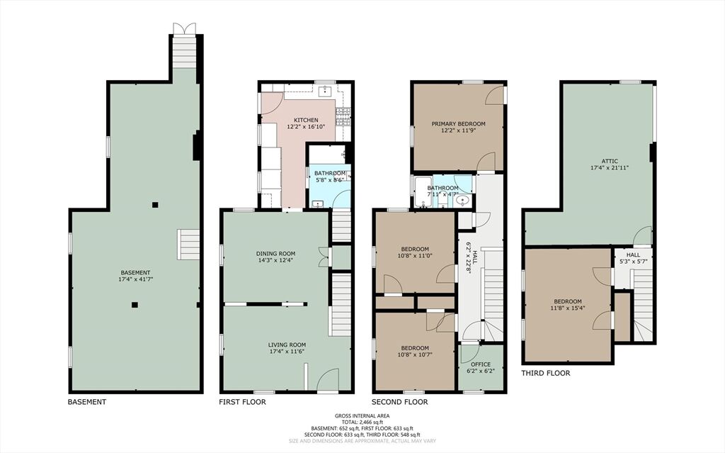
Rare Duplex style residence just minutes from the train, downtown shops & restaurants, Rt. 93 & 128, school, MacDonald Field and only 7 miles to Boston! Unit 46 features a modern kitchen with granite counter tops, a Wolfe gas stove, ample cabinet space and a three quarter bath and laundry is nearby. The dining room with a built-in china cabinet seamlessly flows into the living room. Upstairs you'll find three bedrooms, an office/den and full bath. There are two spacious, unfinished, unheated rooms on the third level offering potential for additional living space. Recent updates to #46 include a gas fired boiler, hot water heater & electric panel. Unit 48 has the same number of rooms and bedrooms and there is a half bath with laundry off the eat-in kitchen and one unfinished, unheated room on the third level. Both units include front porch's. The rear yard is spacious and fenced in with parking for three cars and room to expand. Make an appointment to see this home soon!


General Information for 46-48 Swanton Street Winchester, MA 01890

Town Winchester
County Middlesex
Stories 6
SQFT 3,233
Status Available
Listing Number 73461412 (MLSPIN)

Rooms Information for 46-48 Swanton Street Winchester, MA 01890

Laundry Washer Hookup
Dryer Hookup
Gas Dryer Hookup
Electric Dryer Hookup

Interior Information for 46-48 Swanton Street Winchester, MA 01890

Basement Full
Interior Entry
Bulkhead
Concrete
Unfinished
Interior Features Ceiling Fan(s)
Floored Attic
Walk-Up Attic
Storage
Stone/Granite/Solid Counters
Upgraded Cabinets
Upgraded Countertops
Bathroom with Shower Stall
Bathroom With Tub & Shower
Internet Available - Unknown
Lead Certification Available
Living Room
Dining Room
Kitchen
Laundry Room
Office/Den
Wood
Tile
Carpet
Stone/Ceramic Tile
Heating Hot Water
Steam
Natural Gas
Individual
Unit Control
Forced Air
Cooling None
Appliances Range
Disposal
Refrigerator
Washer
Dryer
Range Hood
Dishwasher

Exterior Information for 46-48 Swanton Street Winchester, MA 01890

Lot Size 0.20 acres
Lot Description Level
Construction Frame
Parking Spaces: 3
Paved Drive
Shared Driveway
Off Street
Common
Stone/Gravel
Paved
Lot Level
Water Public
Sewer Public Sewer
Exterior Features Rain Gutters
Fenced/Enclosed
Fenced

Neighborhood Information for 46-48 Swanton Street Winchester, MA 01890

Neighborhood Amenities Public Transportation
Shopping
Tennis Court(s)
Park
Walk/Jog Trails
Golf
Medical Facility
Bike Path
Conservation Area
Highway Access
House of Worship
Public School
T-Station
Sidewalks

Schools information for 46-48 Swanton Street Winchester, MA 01890

Elementary Lynch
Middle Mccall
High Winchester High
General Area Public, Private School and College Information

Miscellaneous Information for 46-48 Swanton Street Winchester, MA 01890

Year Built 1887
Association Fee 0
Taxes $11,239 /Yr
Comp

Permalink:

Listing provided courtesy of compass

Market Snapshot as of December 19, 2025 (Last 30 days)

Condo Data
Units 5,028
Avg Price $943,987
Avg Days Listed 126
Total New Listings 5
House Data
Units 8,207
Avg Price $1,198,063
Avg Days Listed 113
Total New Listings 12
Multi-Family Data
Units 1,773
Avg Price $1,351,325
Avg Days Listed 130
Total New Listings 2

Average Price by Property Type
Units by Property Type
Average Days on Market by Property Type

Recent Home Sales In This Zip Code (01890)

For a more detailed market analyis one of our real estate agents can provide you with a full report.

Address Closing Date List Price Closing Price % of List Price

Request Information/Showing

Schedule a visit?  Yes    No
Save Property To Favorites
Map This Property
Driving Directions
 Previous  |  Next Back   
Listing: 1 of 1 Updated 26 minutes ago
Real Estate LogoThe property listing data and information set forth herein were provided to MLS Property Information Network, Inc. from third party sources, including sellers, lessors and public records, and were compiled by MLS Property Information Network, Inc. The property listing data and information are for the personal, non-commercial use of consumers having a good faith interest in purchasing or leasing listed properties of the type displayed to them and may not be used for any purpose other than to identify prospective properties which such consumers may have a good faith interest in purchasing or leasing. MLS Property Information Network, Inc. and its subscribers disclaim any and all representations and warranties as to the accuracy of the property listing data and information set forth herein. (AN2383/TM336476)