| Previous | Next | Back | 
| Listing: 1 of 1 | Updated 54 minutes ago | 
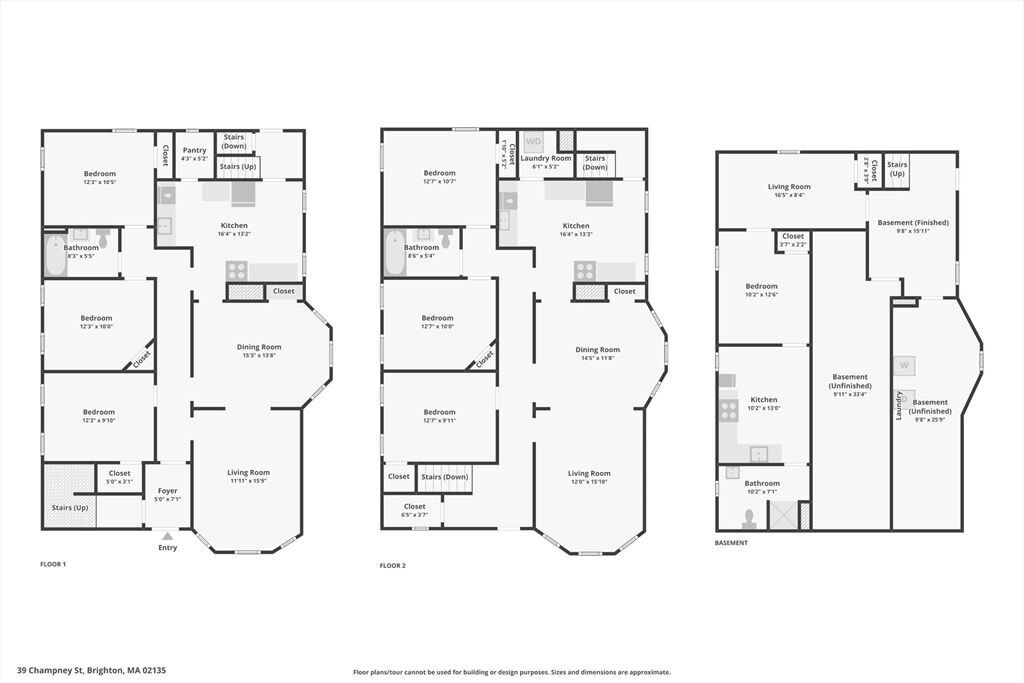
Welcome to 39 Champney St, a rare opportunity to own a spacious and versatile two-family home in the heart of Brighton. Perfectly located just minutes from the express bus, shops, dining, and Boston College, this property offers both move-in comfort and strong rental income potential. Each unit offers 3 bedrooms, 1 full bath, a bright living room, dining room, storage, and a modern kitchen with updated appliances. The second-floor unit has been fully renovated with a luxury modern design and stylish finishes. The basement provides a mix of finished living areas—bedroom, full bath, kitchenette, and living room—plus unfinished utility/storage rooms, offering flexibility for guests, or extended family. Whether you’re an owner-occupant seeking additional income, or an investor looking for a high-demand rental property, this home offers endless flexibility. Don’t miss your chance to own this beautifully maintained and updated multi-family in one of Boston’s most desirable neighborhoods
| General Information for 39 Champney St Brighton, MA 02135 | |
| Town | Boston - Brighton | 
| Village | Brighton | 
| County | Suffolk | 
| Stories | 2 | 
| SQFT | 2,808 | 
| Status | Available | 
| Listing Number | 73448374 (MLSPIN) | 
| Rooms Information for 39 Champney St Brighton, MA 02135 | |
| Laundry | Washer Hookup Dryer Hookup Electric Dryer Hookup | 
| Interior Information for 39 Champney St Brighton, MA 02135 | |
| Basement | Full Finished | 
| Interior Features | Pantry Storage Bathroom With Tub & Shower Upgraded Cabinets Upgraded Countertops Living Room Dining Room Kitchen Laundry Room Wood Tile Hardwood | 
| Heating | Hot Water Forced Air Natural Gas | 
| Appliances | Range Dishwasher Microwave Refrigerator Freezer Washer Dryer Range Hood Disposal ENERGY STAR Qualified Refrigerator ENERGY STAR Qualified Dryer ENERGY STAR Qualified Dishwasher ENERGY STAR Qualified Washer | 
| Exterior Information for 39 Champney St Brighton, MA 02135 | |
| Lot Size | 0.11 acres | 
| Construction | Frame | 
| Parking | Leased | 
| Water | Public | 
| Sewer | Public Sewer | 
| Exterior Features | Balcony/Deck Rain Gutters Fenced/Enclosed Fenced | 
| Neighborhood Information for 39 Champney St Brighton, MA 02135 | |
| Neighborhood Amenities | Public Transportation Shopping Pool Park Walk/Jog Trails Golf Medical Facility Laundromat Bike Path Conservation Area Highway Access House of Worship Private School Public School T-Station University Sidewalks | 
| Schools information for 39 Champney St Brighton, MA 02135 | |
| Elementary | Boston Public | 
| Middle | Boston Public | 
| High | Boston Public | 
| General Area Public, Private School and College Information | |
| Miscellaneous Information for 39 Champney St Brighton, MA 02135 | |
| Year Built | 1914 | 
| Association Fee | 0 | 
| Taxes | $8,955 /Yr | 
| Comp | |
| Permalink: | |
| Condo | Data | 
|---|---|
| Units | 6,875 | 
| Avg Price | $927,467 | 
| Avg Days Listed | 100 | 
| Total New Listings | 35 | 
| House | Data | 
|---|---|
| Units | 12,031 | 
| Avg Price | $1,246,503 | 
| Avg Days Listed | 87 | 
| Total New Listings | 6 | 
| Multi-Family | Data | 
|---|---|
| Units | 2,166 | 
| Avg Price | $1,283,106 | 
| Avg Days Listed | 108 | 
| Total New Listings | 15 | 
 
			 
			 
			For a more detailed market analyis one of our real estate agents can provide you with a full report.
| Address | Closing Date | List Price | Closing Price | % of List Price | 
|---|
| Previous | Next | Back | 
| Listing: 1 of 1 | Updated 54 minutes ago | 
 The property listing data and information set forth herein were provided to MLS Property Information Network, Inc. from third party sources, including sellers, lessors and public records, and were compiled by MLS Property Information Network, Inc. The property listing data and information are for the personal, non-commercial use of consumers having a good faith interest in purchasing or leasing listed properties of the type displayed to them and may not be used for any purpose other than to identify prospective properties which such consumers may have a good faith interest in purchasing or leasing. MLS Property Information Network, Inc. and its subscribers disclaim any and all representations and warranties as to the accuracy of the property listing data and information set forth herein.
(BB5551/BB903145)
The property listing data and information set forth herein were provided to MLS Property Information Network, Inc. from third party sources, including sellers, lessors and public records, and were compiled by MLS Property Information Network, Inc. The property listing data and information are for the personal, non-commercial use of consumers having a good faith interest in purchasing or leasing listed properties of the type displayed to them and may not be used for any purpose other than to identify prospective properties which such consumers may have a good faith interest in purchasing or leasing. MLS Property Information Network, Inc. and its subscribers disclaim any and all representations and warranties as to the accuracy of the property listing data and information set forth herein.
(BB5551/BB903145)