Previous  |  Next Back   
Listing: 1 of 1 Updated 45 minutes ago

343 Monponsett St Halifax, MA 02338

Single Family $475,000



Enjoy the convenience of single-floor living in this updated ranch-style Halifax home! Minisplit ductless heating/cooling system installed September of 2025. Water heater installed March of 2025. Updated vinyl plank floors only a couple years old. Just added additional additional crawlspace insulation November 2025. New roof was installed right before solar panels were installed less than 5 years ago. Solar panels generate all the electricity the current owner needs - they are on a lease for $153.35/mo through IGS Solar. The fully fenced backyard provides plenty of private outdoor space - perfect for pet owners. You're going to love this home. Come check it out!


General Information for 343 Monponsett St Halifax, MA 02338

Town Halifax
County Plymouth
Style Ranch
Bungalow
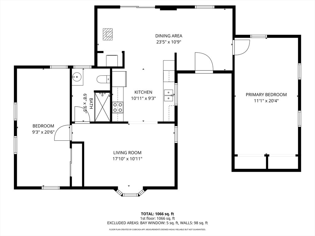
SQFT 1,166
Status Available
Listing Number 73457955 (MLSPIN)

Rooms Information for 343 Monponsett St Halifax, MA 02338

Laundry First Floor
Electric Dryer Hookup
Washer Hookup

Interior Information for 343 Monponsett St Halifax, MA 02338

Basement Crawl Space
Heating Heat Pump
Electric
Wood Stove
Ductless
Cooling Ductless
Appliances Water Heater
Range
Dishwasher
Microwave
Refrigerator
Washer
Dryer

Exterior Information for 343 Monponsett St Halifax, MA 02338

Lot Size 0.23 acres
Lot Description Cleared
Gentle Sloping
Construction Frame
Parking Spaces: 3
Paved Drive
Off Street
Paved
Lot Cleared
Gentle Sloping
Water Public
Sewer Private Sewer
Exterior Features Patio

Neighborhood Information for 343 Monponsett St Halifax, MA 02338

Miscellaneous Information for 343 Monponsett St Halifax, MA 02338

Year Built 1945
Association Fee 0
Taxes $5,407 /Yr
Comp

Permalink:

Listing provided courtesy of realty negotiations, llc

Market Snapshot as of December 6, 2025 (Last 30 days)

Condo Data
Units 5,658
Avg Price $938,189
Avg Days Listed 116
Total New Listings 0
House Data
Units 9,528
Avg Price $1,199,310
Avg Days Listed 103
Total New Listings 7
Multi-Family Data
Units 1,940
Avg Price $1,351,013
Avg Days Listed 121
Total New Listings 0

Average Price by Property Type
Units by Property Type
Average Days on Market by Property Type

Recent Home Sales In This Zip Code (02338)

For a more detailed market analyis one of our real estate agents can provide you with a full report.

Address Closing Date List Price Closing Price % of List Price

Request Information/Showing

Schedule a visit?  Yes    No
Save Property To Favorites
Map This Property
Driving Directions
 Previous  |  Next Back   
Listing: 1 of 1 Updated 45 minutes ago
Real Estate LogoThe property listing data and information set forth herein were provided to MLS Property Information Network, Inc. from third party sources, including sellers, lessors and public records, and were compiled by MLS Property Information Network, Inc. The property listing data and information are for the personal, non-commercial use of consumers having a good faith interest in purchasing or leasing listed properties of the type displayed to them and may not be used for any purpose other than to identify prospective properties which such consumers may have a good faith interest in purchasing or leasing. MLS Property Information Network, Inc. and its subscribers disclaim any and all representations and warranties as to the accuracy of the property listing data and information set forth herein. (AN5614/CN224232)