Previous  |  Next Back   
Listing: 1 of 1 Updated 40 minutes ago

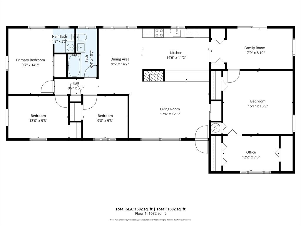
3 Wellesley Road Beverly, MA 01915

1bd. 1fb. 4pb. Single Family $699,900


Open House: -
Open House: -
Open House: -

Sprawling 4 bedroom ranch set on a beautiful lot in the desirable neighborhood of Raymond Farms. Enjoy the brand new kitchen featuring white cabinetry and Quartz Countertops. The sundrenched living room has a wood burning fireplace and is open to the dining area. There is a family room off of the kitchen, a 4th bedroom, and an office. Many updates to this home include replacement windows, a newer hot water heater, fresh interior and exterior paint, bathroom vanity, etc. Quiet location in a private setting. Showings start on Thursday (10/16) at an open house from 4:00 - 5:30 pm, followed by Open Houses on Saturday (10/18) and Sunday (10/19) from 11:00 am - 1:00 pm.


General Information for 3 Wellesley Road Beverly, MA 01915

Town Beverly
Village North Beverly
County Essex
Style Ranch
SQFT 1,682
Status Available
Listing Number 73443117 (MLSPIN)

Rooms Information for 3 Wellesley Road Beverly, MA 01915

Laundry First Floor
Master Bath Features Yes
Bedroom 2 9X13
Closet
Flooring - Wall to Wall Carpet
Bedroom 3 9X10
Closet
Flooring - Wall to Wall Carpet
Bedroom 4 Closet
Flooring - Vinyl

Interior Information for 3 Wellesley Road Beverly, MA 01915

Interior Features Office
Tile
Vinyl
Flooring - Vinyl
Heating Electric Baseboard
Cooling Wall Unit(s)
Fireplace 1
Appliances Electric Water Heater

Exterior Information for 3 Wellesley Road Beverly, MA 01915

Lot Size 0.25 acres
Construction Frame
Parking Spaces: 2
Paved Drive
Off Street
Water Public
Sewer Public Sewer
Exterior Features Patio

Neighborhood Information for 3 Wellesley Road Beverly, MA 01915

Neighborhood Amenities Public Transportation
Shopping
Pool
Tennis Court(s)
Park
Walk/Jog Trails
Stable(s)
Golf
Medical Facility
Laundromat
Bike Path
Conservation Area
Highway Access
House of Worship
Marina
Private School
Public School
T-Station
University

Schools information for 3 Wellesley Road Beverly, MA 01915

Elementary North Beverly
Middle Beverly Middle
High Bhs
General Area Public, Private School and College Information

Miscellaneous Information for 3 Wellesley Road Beverly, MA 01915

Year Built 1957
Association Fee 0
Taxes $6,147 /Yr
Comp

Permalink:

Listing provided courtesy of keller williams realty evolution

Market Snapshot as of October 16, 2025 (Last 30 days)

Condo Data
Units 6,934
Avg Price $936,682
Avg Days Listed 96
Total New Listings 6
House Data
Units 12,412
Avg Price $1,253,084
Avg Days Listed 84
Total New Listings 33
Multi-Family Data
Units 2,122
Avg Price $1,290,934
Avg Days Listed 108
Total New Listings 5

Average Price by Property Type
Units by Property Type
Average Days on Market by Property Type

Recent Home Sales In This Zip Code (01915)

For a more detailed market analyis one of our real estate agents can provide you with a full report.

Address Closing Date List Price Closing Price % of List Price

Request Information/Showing

Schedule a visit?  Yes    No
Save Property To Favorites
Map This Property
Driving Directions
 Previous  |  Next Back   
Listing: 1 of 1 Updated 40 minutes ago
Real Estate LogoThe property listing data and information set forth herein were provided to MLS Property Information Network, Inc. from third party sources, including sellers, lessors and public records, and were compiled by MLS Property Information Network, Inc. The property listing data and information are for the personal, non-commercial use of consumers having a good faith interest in purchasing or leasing listed properties of the type displayed to them and may not be used for any purpose other than to identify prospective properties which such consumers may have a good faith interest in purchasing or leasing. MLS Property Information Network, Inc. and its subscribers disclaim any and all representations and warranties as to the accuracy of the property listing data and information set forth herein. (C95098/C2501271)