Previous  |  Next Back   
Listing: 1 of 1 Updated 17 minutes ago

3 Useadoor Street Middleton, MA 01949

Single Family $1,199,999



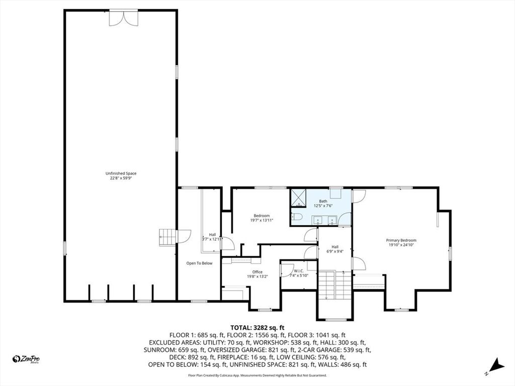
A must see! Welcome to 3 Useadoor Street, a haven of Comfort, Craftsmanship, and Charm. The open-concept main living area features a spacious kitchen, dining, and living room with a fireplace and direct access to the back deck—perfect for everyday living and entertaining. A first-floor bedroom and laundry add convenience. Upstairs, the expansive primary suite offers built-in cabinetry and a double-vanity bath, joined by a second bedroom and versatile office or dressing room. The partially finished lower level includes a living space with walk-out access to your backyard through the charming “Use-a-door” sunroom, a workshop, and oversized garage bay. Opportunity for expansion flows in unfinished areas of the lower level and above the garages. Your serene backyard space includes a patio, fish pond, and plenty of room for relaxation. Recent updates include: well water system (2025) and hot water system (2022)


General Information for 3 Useadoor Street Middleton, MA 01949

Town Middleton
County Essex
Style Cape
SQFT 2,733
Status Available
Listing Number 73446330 (MLSPIN)

Rooms Information for 3 Useadoor Street Middleton, MA 01949

Laundry Flooring - Stone/Ceramic Tile
Countertops - Upgraded
Main Level
First Floor
Bedroom 2 Closet
Flooring - Wall to Wall Carpet
Balcony - Interior
Attic Access
Recessed Lighting
Bedroom 3 Ceiling Fan(s)
Flooring - Hardwood
Closet - Double

Interior Information for 3 Useadoor Street Middleton, MA 01949

Basement Full
Partially Finished
Walk-Out Access
Interior Entry
Garage Access
Interior Features Walk-In Closet(s)
Closet/Cabinets - Custom Built
Dressing Room
Recessed Lighting
Lighting - Overhead
Open Floorplan
Closet
Office
Mud Room
Kitchen
Sun Room
Plywood
Carpet
Hardwood
Vinyl / VCT
Flooring - Wall to Wall Carpet
Flooring - Stone/Ceramic Tile
Concrete
Heating Central
Forced Air
Propane
Pellet Stove
Cooling Central Air
Fireplace 2
Appliances Water Heater

Exterior Information for 3 Useadoor Street Middleton, MA 01949

Lot Size 0.96 acres
Lot Description Wooded
Garage 4 Car Garage
Parking Spaces: 6
Attached
Barn
Oversized
Off Street
Paved
Lot Wooded
Water Private
Sewer Private Sewer
Exterior Features Porch - Enclosed
Deck - Composite
Patio
Rain Gutters
Garden
Stone Wall

Neighborhood Information for 3 Useadoor Street Middleton, MA 01949

Neighborhood Amenities Walk/Jog Trails
Golf
Private School
Public School
University

Miscellaneous Information for 3 Useadoor Street Middleton, MA 01949

Year Built 1993
Association Fee 0
Taxes $9,129 /Yr
Comp

Permalink:

Listing provided courtesy of aluxety

Market Snapshot as of October 30, 2025 (Last 30 days)

Condo Data
Units 6,961
Avg Price $925,779
Avg Days Listed 99
Total New Listings 9
House Data
Units 12,281
Avg Price $1,241,556
Avg Days Listed 86
Total New Listings 9
Multi-Family Data
Units 2,186
Avg Price $1,280,128
Avg Days Listed 107
Total New Listings 0

Average Price by Property Type
Units by Property Type
Average Days on Market by Property Type

Recent Home Sales In This Zip Code (01949)

For a more detailed market analyis one of our real estate agents can provide you with a full report.

Address Closing Date List Price Closing Price % of List Price

Request Information/Showing

Schedule a visit?  Yes    No
Save Property To Favorites
Map This Property
Driving Directions
 Previous  |  Next Back   
Listing: 1 of 1 Updated 17 minutes ago
Real Estate LogoThe property listing data and information set forth herein were provided to MLS Property Information Network, Inc. from third party sources, including sellers, lessors and public records, and were compiled by MLS Property Information Network, Inc. The property listing data and information are for the personal, non-commercial use of consumers having a good faith interest in purchasing or leasing listed properties of the type displayed to them and may not be used for any purpose other than to identify prospective properties which such consumers may have a good faith interest in purchasing or leasing. MLS Property Information Network, Inc. and its subscribers disclaim any and all representations and warranties as to the accuracy of the property listing data and information set forth herein. (AN8387/CN231037)