Previous  |  Next Back   
Listing: 1 of 1 Updated 10 minutes ago

271 Glenwood Rd Rutland, MA 01543

1bd. 2fb. 3pb. Single Family $749,900



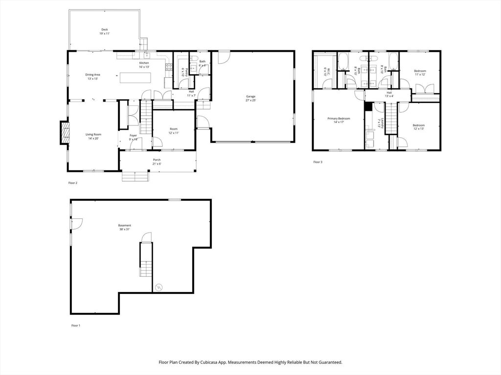
New construction by Elbag Builders—known for high-quality, energy-efficient homes—this beautiful farmhouse strikes a nice balance between privacy and community. Set on 1.5 acres near the Rutland/Princeton line, just minutes to 68. The first floor features an elegant living room with a propane fireplace, sunlit dining room with expanded sliders and custom millwork, chef’s kitchen with center island, stainless steel appliances, granite counters, and walk-in pantry with built-in shelving and matching granite counters. A flex/office room sits off the open foyer. Upstairs, the spacious primary suite includes a custom walk-in closet and a relaxing bath, along with two additional bedrooms and a full bathroom with a double vanity. The laundry room features two hanging racks and ample counter space for folding clothes. Additional highlights include a farmers porch, oversized two-car garage, built-in mud bench, and large composite deck overlooking the scenic backyard with western sunsets.


General Information for 271 Glenwood Rd Rutland, MA 01543

Town Rutland
County Worcester
Style Farmhouse
SQFT 2,170
Status Under Contract
Listing Number 73439035 (MLSPIN)

Rooms Information for 271 Glenwood Rd Rutland, MA 01543

Laundry Closet/Cabinets - Custom Built
Second Floor
Electric Dryer Hookup
Washer Hookup
Master Bath Features Yes
Bedroom 2 13X12
Ceiling Fan(s)
Closet
Flooring - Wall to Wall Carpet
Bedroom 3 12X11
Ceiling Fan(s)
Closet
Flooring - Wall to Wall Carpet

Interior Information for 271 Glenwood Rd Rutland, MA 01543

Basement Full
Unfinished
Interior Features Office
Finish - Cement Plaster
Wood
Tile
Carpet
Flooring - Hardwood
Heating Forced Air
Cooling Central Air
Fireplace 1
Appliances Electric Water Heater
ENERGY STAR Qualified Refrigerator
Wine Refrigerator
ENERGY STAR Qualified Dryer
ENERGY STAR Qualified Dishwasher
ENERGY STAR Qualified Washer
Range Hood
Range
Oven
Plumbed For Ice Maker

Exterior Information for 271 Glenwood Rd Rutland, MA 01543

Lot Size 1.50 acres
Lot Description Wooded
Construction Conventional (2x4-2x6)
Garage 2 Car Garage
Parking Spaces: 6
Attached
Off Street
Paved
Lot Wooded
Water Private
Sewer Private Sewer
Exterior Features Porch
Deck - Composite
Rain Gutters

Neighborhood Information for 271 Glenwood Rd Rutland, MA 01543

Neighborhood Amenities Shopping
Pool
Park
Walk/Jog Trails
Golf
Highway Access
House of Worship
Public School

Miscellaneous Information for 271 Glenwood Rd Rutland, MA 01543

Association Fee 0
Comp

Permalink:

Listing provided courtesy of coldwell banker realty - worcester

Market Snapshot as of December 7, 2025 (Last 30 days)

Condo Data
Units 5,625
Avg Price $939,374
Avg Days Listed 117
Total New Listings 3
House Data
Units 9,467
Avg Price $1,199,029
Avg Days Listed 103
Total New Listings 11
Multi-Family Data
Units 1,928
Avg Price $1,354,238
Avg Days Listed 122
Total New Listings 1

Average Price by Property Type
Units by Property Type
Average Days on Market by Property Type

Recent Home Sales In This Zip Code (01543)

For a more detailed market analyis one of our real estate agents can provide you with a full report.

Address Closing Date List Price Closing Price % of List Price

Request Information/Showing

Schedule a visit?  Yes    No
Save Property To Favorites
Map This Property
Driving Directions
 Previous  |  Next Back   
Listing: 1 of 1 Updated 10 minutes ago
Real Estate LogoThe property listing data and information set forth herein were provided to MLS Property Information Network, Inc. from third party sources, including sellers, lessors and public records, and were compiled by MLS Property Information Network, Inc. The property listing data and information are for the personal, non-commercial use of consumers having a good faith interest in purchasing or leasing listed properties of the type displayed to them and may not be used for any purpose other than to identify prospective properties which such consumers may have a good faith interest in purchasing or leasing. MLS Property Information Network, Inc. and its subscribers disclaim any and all representations and warranties as to the accuracy of the property listing data and information set forth herein. (AN6245/CN255100)