Previous  |  Next Back   
Listing: 1 of 1 Updated 21 minutes ago

27 Pollard Dr Millis, MA 02054

1bd. 3fb. 6pb. Single Family $825,000


Open House: -

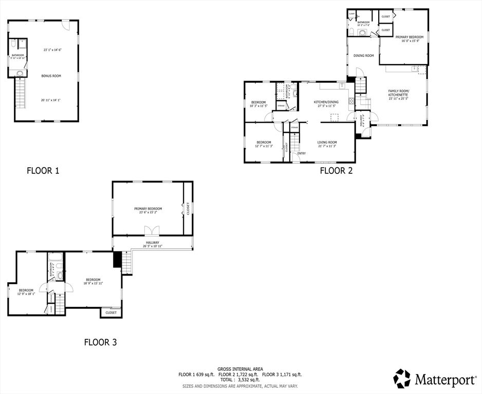
Discover an exceptionally spacious and versatile home, ideal for multi-generational living, nestled on a quiet, dead-end street. Originally a 1960s Cape, the property features a significant 1990 addition that integrates seamlessly, providing abundant space for everything from entertaining to remote work. The home includes a total of six bedrooms and functions perfectly as a single-family residence, or you can utilize the attached two-bedroom in-law suite as a separate residence. This private suite offers 3 finished levels with a large great room, kitchenette area, 2 full bathrooms, and its own finished walk-out basement, providing convenient, private accommodations for extended family. Outside, the expansive backyard is a true oasis, especially in warmer months, boasting lush greenery, a large deck overlooking the property, and an in-ground pool, the perfect setting for summer gatherings and relaxation. A unique value!


General Information for 27 Pollard Dr Millis, MA 02054

Town Millis
County Norfolk
Style Cape
SQFT 3,532
Status Available
Listing Number 73448837 (MLSPIN)

Rooms Information for 27 Pollard Dr Millis, MA 02054

Laundry Flooring - Stone/Ceramic Tile
First Floor
Electric Dryer Hookup
Washer Hookup
Bedroom 2 Closet
Flooring - Wall to Wall Carpet
Bedroom 3 Closet
Flooring - Hardwood
Bedroom 4 Closet
Flooring - Hardwood
Bedroom 5 Closet
Flooring - Hardwood

Interior Information for 27 Pollard Dr Millis, MA 02054

Basement Full
Partially Finished
Walk-Out Access
Concrete
Interior Features Closet
Bathroom - Full
Bedroom
Bathroom
Bonus Room
Carpet
Laminate
Hardwood
Flooring - Hardwood
Heating Baseboard
Oil
Cooling Window Unit(s)
Fireplace 1
Appliances Electric Water Heater
Water Heater
Microwave
ENERGY STAR Qualified Refrigerator
ENERGY STAR Qualified Dryer
ENERGY STAR Qualified Dishwasher
ENERGY STAR Qualified Washer
Oven

Exterior Information for 27 Pollard Dr Millis, MA 02054

Lot Size 0.45 acres
Lot Description Easements
Level
Construction Frame
Parking Spaces: 4
Off Street
Paved
Lot Easements
Level
Water Public
Sewer Public Sewer
Exterior Features Porch
Deck - Wood
Pool - Inground
Storage
Fenced Yard
Garden
Fenced/Enclosed
Fenced
Pool In Ground

Neighborhood Information for 27 Pollard Dr Millis, MA 02054

Neighborhood Amenities Shopping
Tennis Court(s)
Park
Walk/Jog Trails
Bike Path
Conservation Area
House of Worship
Public School

Schools information for 27 Pollard Dr Millis, MA 02054

Elementary Clyde Brown
Middle Millis Middle
High Millis High
General Area Public, Private School and College Information

Miscellaneous Information for 27 Pollard Dr Millis, MA 02054

Year Built 1960
Association Fee 0
Taxes $11,841 /Yr
Comp

Permalink:

Listing provided courtesy of redfin corp.

Market Snapshot as of November 5, 2025 (Last 30 days)

Condo Data
Units 6,677
Avg Price $928,202
Avg Days Listed 101
Total New Listings 4
House Data
Units 11,549
Avg Price $1,237,998
Avg Days Listed 89
Total New Listings 9
Multi-Family Data
Units 2,121
Avg Price $1,301,404
Avg Days Listed 109
Total New Listings 0

Average Price by Property Type
Units by Property Type
Average Days on Market by Property Type

Recent Home Sales In This Zip Code (02054)

For a more detailed market analyis one of our real estate agents can provide you with a full report.

Address Closing Date List Price Closing Price % of List Price

Request Information/Showing

Schedule a visit?  Yes    No
Save Property To Favorites
Map This Property
Driving Directions
 Previous  |  Next Back   
Listing: 1 of 1 Updated 21 minutes ago
Real Estate LogoThe property listing data and information set forth herein were provided to MLS Property Information Network, Inc. from third party sources, including sellers, lessors and public records, and were compiled by MLS Property Information Network, Inc. The property listing data and information are for the personal, non-commercial use of consumers having a good faith interest in purchasing or leasing listed properties of the type displayed to them and may not be used for any purpose other than to identify prospective properties which such consumers may have a good faith interest in purchasing or leasing. MLS Property Information Network, Inc. and its subscribers disclaim any and all representations and warranties as to the accuracy of the property listing data and information set forth herein. (NB3534/CN205467)