Previous  |  Next Back   
Listing: 1 of 1 Updated 9 minutes ago

24 Moseley St Dorchester, MA 02125

Single Family $959,900



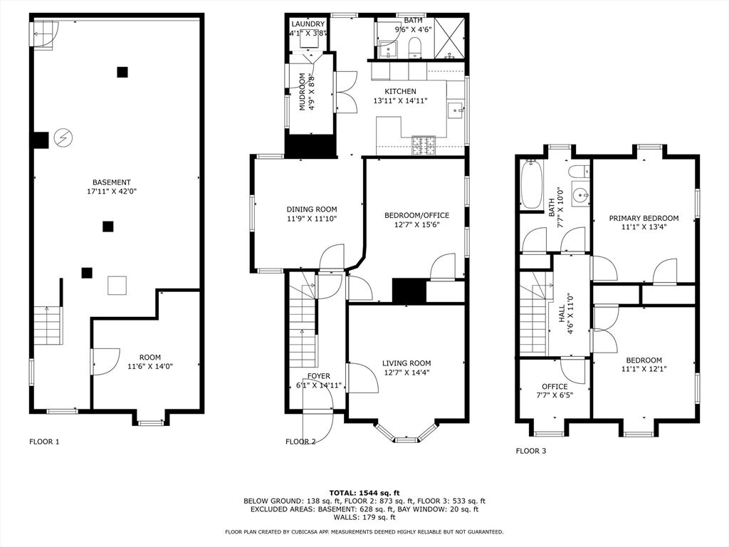
Nestled in Savin Hill. One of Dorchester’s most vibrant neighborhoods, this charming single-family home radiates pride in its ownership both inside and out. The meticulously designed floor plan boasts custom kitchen cabinetry, expansive countertops, and stainless steel appliances. Each room is elegantly decorated, featuring a formal living and dining room, three to four bedrooms, and 2 full bathrooms. Outside, a secluded contemplative patio invites relaxation, while a spacious driveway can comfortably accommodate four vehicles. Conveniently located within a five-minute walk to the Redline, this home offers complimentary shuttle service for Longwood Medical Area workers. Moreover, it’s a short stroll to Castle Island, Moakley Park, a friendly dog park, and other delightful attractions! Close to shopping, expressway , colleges and hospitals. Easy to show.


General Information for 24 Moseley St Dorchester, MA 02125

Town Boston - Dorchester
Village Dorchester
County Suffolk
Style Colonial
SQFT 1,551
Status Available
Listing Number 73442281 (MLSPIN)

Rooms Information for 24 Moseley St Dorchester, MA 02125

Laundry First Floor
Master Bath Features Yes
Bedroom 2 Flooring - Hardwood
Bedroom 3 Flooring - Hardwood
Bedroom 4 Flooring - Hardwood

Interior Information for 24 Moseley St Dorchester, MA 02125

Basement Full
Walk-Out Access
Interior Features Wood
Tile
Hardwood
Heating Forced Air
Cooling Central Air
Appliances Gas Water Heater
Range
Dishwasher
Microwave
Refrigerator
Washer
Dryer

Exterior Information for 24 Moseley St Dorchester, MA 02125

Lot Size 0.06 acres
Construction Frame
Parking Spaces: 4
Paved Drive
Paved
Water Public
Sewer Public Sewer
Exterior Features Patio

Neighborhood Information for 24 Moseley St Dorchester, MA 02125

Neighborhood Amenities Public Transportation
Shopping
Park
Walk/Jog Trails
Golf
Medical Facility
Laundromat
Bike Path
Highway Access
House of Worship
Marina
Public School
T-Station
University
Sidewalks

Miscellaneous Information for 24 Moseley St Dorchester, MA 02125

Year Built 1900
Association Fee 0
Taxes $5,818 /Yr
Comp

Permalink:

Listing provided courtesy of village realty hm, llc

Market Snapshot as of October 15, 2025 (Last 30 days)

Condo Data
Units 7,027
Avg Price $938,172
Avg Days Listed 96
Total New Listings 23
House Data
Units 12,590
Avg Price $1,247,837
Avg Days Listed 83
Total New Listings 2
Multi-Family Data
Units 2,137
Avg Price $1,292,209
Avg Days Listed 107
Total New Listings 13

Average Price by Property Type
Units by Property Type
Average Days on Market by Property Type

Recent Home Sales In This Zip Code (02125)

For a more detailed market analyis one of our real estate agents can provide you with a full report.

Address Closing Date List Price Closing Price % of List Price

Request Information/Showing

Schedule a visit?  Yes    No
Save Property To Favorites
Map This Property
Driving Directions
 Previous  |  Next Back   
Listing: 1 of 1 Updated 9 minutes ago
Real Estate LogoThe property listing data and information set forth herein were provided to MLS Property Information Network, Inc. from third party sources, including sellers, lessors and public records, and were compiled by MLS Property Information Network, Inc. The property listing data and information are for the personal, non-commercial use of consumers having a good faith interest in purchasing or leasing listed properties of the type displayed to them and may not be used for any purpose other than to identify prospective properties which such consumers may have a good faith interest in purchasing or leasing. MLS Property Information Network, Inc. and its subscribers disclaim any and all representations and warranties as to the accuracy of the property listing data and information set forth herein. (BB5774/CN205974)