Previous | Next | Back |
Listing: 1 of 1 | Updated 57 minutes ago |
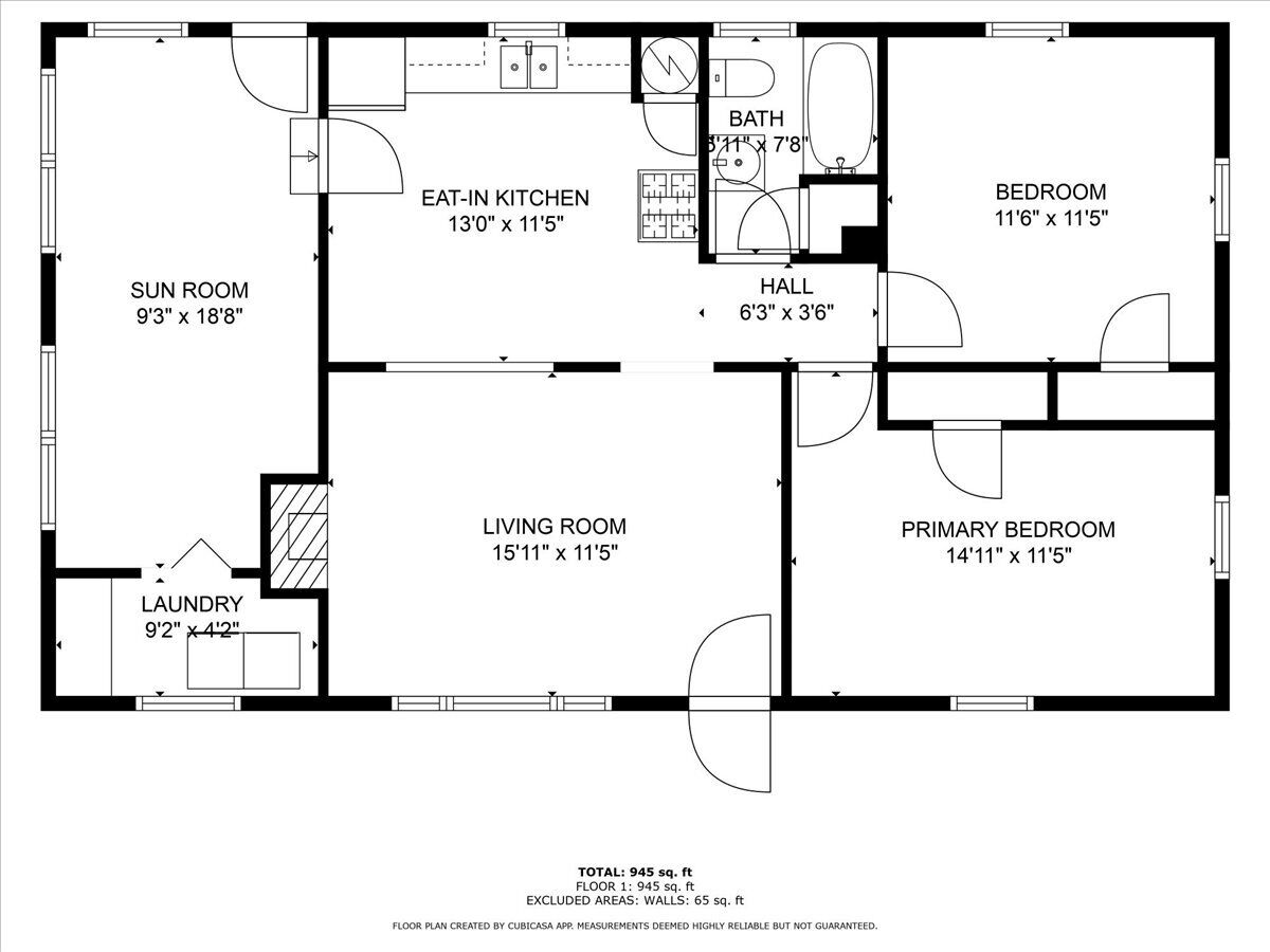
Welcome to your Cape Cod getaway! Just minutes from Parker's River Beach, this charming two-bedroom ranch blends classic Cape character with thoughtful updates inside and out. The sunny living room offers a cozy fireplace, original pine accents, and new recessed lighting, while the versatile 3-season room provides bonus space for guests, gatherings, or lazy afternoons with the sea breeze drifting in. Recent improvements include a brand-new septic system, newer windows and siding, new recessed lighting, fresh paint and flooring throughout, and a new patio for summer cookouts. Energy upgrades through Mass Save added insulation in the attic and protective shielding in the crawl space to safeguard pipes, giving peace of mind year-round. Outside, enjoy an enclosed outdoor shower, a private backyard retreat, and a storage shed for all your beach toys. Best of all, the home comes fully furnished, making it easy to settle in or start renting right away. With dining, shopping, and beautiful beaches just minutes away, this home is ready to be enjoyed as a year-round residence, second home, or proven rental investment.
General Information for 23 Holly Lane South Yarmouth, MA 02664 |
|
Town | Yarmouth |
Village | South Yarmouth |
County | Barnstable |
Stories | 1 |
Style | Ranch |
SQFT | 1,008 |
Status | Under Contract |
Listing Number | 22504406 (CCIMLS) |
Rooms Information for 23 Holly Lane South Yarmouth, MA 02664 |
|
Family Room | 0X0 Fireplace(s): Wood Burning Flooring: Vinyl Recessed Lighting Living Room Ceiling Fan(s) |
Kitchen Features | 0X0 Flooring: Vinyl |
Dining Room | 0X0 |
Laundry | Laundry Room |
Bedroom | 0X0 Flooring: Vinyl Recessed Lighting |
Bedroom 1 | 0X0 Flooring: Vinyl Recessed Lighting |
Bedroom 2 | 0X0 Flooring: Vinyl Recessed Lighting |
Bedroom 3 | 0X0 |
Bedroom 4 | 0X0 |
Interior Information for 23 Holly Lane South Yarmouth, MA 02664 |
|
Basement | Crawl Space |
Fireplace | Yes |
Appliances | Electric Dryer Washer Refrigerator Gas Range Gas Water Heater |
Exterior Information for 23 Holly Lane South Yarmouth, MA 02664 |
|
Lot Size | 0.20 acres |
Lot Description | Marina School Medical Facility Major Highway House of Worship Near Golf Course Shopping |
Construction | Shingle Siding |
Lot | Marina School Medical Facility Major Highway House of Worship Near Golf Course Shopping |
Sewer | Septic Tank |
Exterior Features | Outdoor Shower |
Neighborhood Information for 23 Holly Lane South Yarmouth, MA 02664 |
|
Schools information for 23 Holly Lane South Yarmouth, MA 02664 |
|
Elementary | Dennis-Yarmouth |
Middle | Dennis-Yarmouth |
High | Dennis-Yarmouth |
General Area Public, Private School and College Information | |
Miscellaneous Information for 23 Holly Lane South Yarmouth, MA 02664 |
|
Year Built | 1960 |
Distance to Beach | .5 - 1 |
Association Fee | 0 |
Taxes | $3,098 /Yr |
Permalink: |
Condo | Data |
---|---|
Units | 6,784 |
Avg Price | $933,821 |
Avg Days Listed | 95 |
Total New Listings | 0 |
House | Data |
---|---|
Units | 12,214 |
Avg Price | $1,264,595 |
Avg Days Listed | 83 |
Total New Listings | 41 |
Multi-Family | Data |
---|---|
Units | 2,068 |
Avg Price | $1,291,404 |
Avg Days Listed | 107 |
Total New Listings | 1 |
For a more detailed market analyis one of our real estate agents can provide you with a full report.
Address | Closing Date | List Price | Closing Price | % of List Price |
---|---|---|---|---|
183 South Shore Drive F1 Yarmouth, MA 02664 |
01/03/2025 | $1,049,000 | $977,500 | 93% |
1376 Bridge Street 16 Yarmouth, MA 02664 |
01/01/2025 | $25,000 | $3,300 | 13% |
51 Yankee Drive Yarmouth, MA 02664 |
12/30/2024 | $549,000 | $530,000 | 97% |
23 Town Hall Avenue Yarmouth, MA 02664 |
12/23/2024 | $575,000 | $539,900 | 94% |
18 Wood Road Yarmouth, MA 02664 |
12/20/2024 | $564,900 | $555,000 | 98% |
183 S Shore Drive B2 Yarmouth, MA 02664 |
12/18/2024 | $900,000 | $875,000 | 97% |
246 Old Main Street Yarmouth, MA 02664 |
12/17/2024 | $829,900 | $779,000 | 94% |
14 Diane Avenue Yarmouth, MA 02664 |
12/12/2024 | $729,000 | $699,500 | 96% |
47 Nauhaught Road Yarmouth, MA 02664 |
12/09/2024 | $610,000 | $620,000 | 102% |
9 Station Avenue Yarmouth, MA 02664 |
12/09/2024 | $525,000 | $515,000 | 98% |
74 Ocean Avenue Yarmouth, MA 02664 |
12/05/2024 | $757,000 | $770,000 | 102% |
30 Horse Way Yarmouth, MA 02664 |
12/03/2024 | $898,000 | $938,500 | 105% |
33 Almira Road Yarmouth, MA 02664 |
12/03/2024 | $659,000 | $662,000 | 100% |
9 Captain Percival Road Yarmouth, MA 02664 |
12/02/2024 | $579,000 | $589,000 | 102% |
21 Fruean Avenue Yarmouth, MA 02664 |
12/02/2024 | $3,300 | $3,300 | 100% |
26 Wood Road Yarmouth, MA 02664 |
11/25/2024 | $849,900 | $855,000 | 101% |
90 Seaview Avenue 6F Yarmouth, MA 02664 |
11/25/2024 | $285,000 | $287,000 | 101% |
6 Lauries Lane Yarmouth, MA 02664 |
11/22/2024 | $499,999 | $500,000 | 100% |
23 Shady Rest Drive Yarmouth, MA 02664 |
11/20/2024 | $598,000 | $595,000 | 99% |
196 Forest Road Yarmouth, MA 02664 |
11/18/2024 | $429,000 | $429,000 | 100% |
97 Wilfin Road Yarmouth, MA 02664 |
11/18/2024 | $599,900 | $569,900 | 95% |
22 Angus Avenue Yarmouth, MA 02664 |
11/15/2024 | $439,000 | $430,000 | 98% |
11 Poinsettia Drive Yarmouth, MA 02664 |
11/14/2024 | $595,000 | $605,000 | 102% |
59 Pawkannawkut Drive Yarmouth, MA 02664 |
11/08/2024 | $599,900 | $605,000 | 101% |
150A Seaview Avenue Yarmouth, MA 02664 |
11/08/2024 | $429,000 | $415,000 | 97% |
Previous | Next | Back |
Listing: 1 of 1 | Updated 57 minutes ago |
Disclaimer: All data relating to real estate for sale on this page comes from the Broker Reciprocity (BR) of the Cape Cod & Islands Multiple Listing Service, Inc. Detailed information about real estate listings held by brokerage firms other than Kinlin Grover Compass include the name of the listing broker. Neither the listing company nor Kinlin Grover Compass shall be responsible for any typographical errors, misinformation, misprints and shall be held totally harmless. The Broker providing this data believes it to be correct, but advises interested parties to confirm any item before relying on it in a purchase decision. Copyright 2025 Cape Cod & Islands Multiple Listing Service, Inc. All rights reserved.
This site was last updated 10/04/2025. All properties are subject to prior sale, changes, or withdrawal.
Kinlin Grover Compass has chosen to display only certain towns and/or types or styles of properties. This site may not show all listings that are available through the Cape Cod & Islands Multiple Listing Service, Inc.
(LAER7/u25600)