Previous  |  Next Back   
Listing: 1 of 1 Updated 46 minutes ago

223 Waltham Street Lexington, MA 02421

Single Family $1,299,000



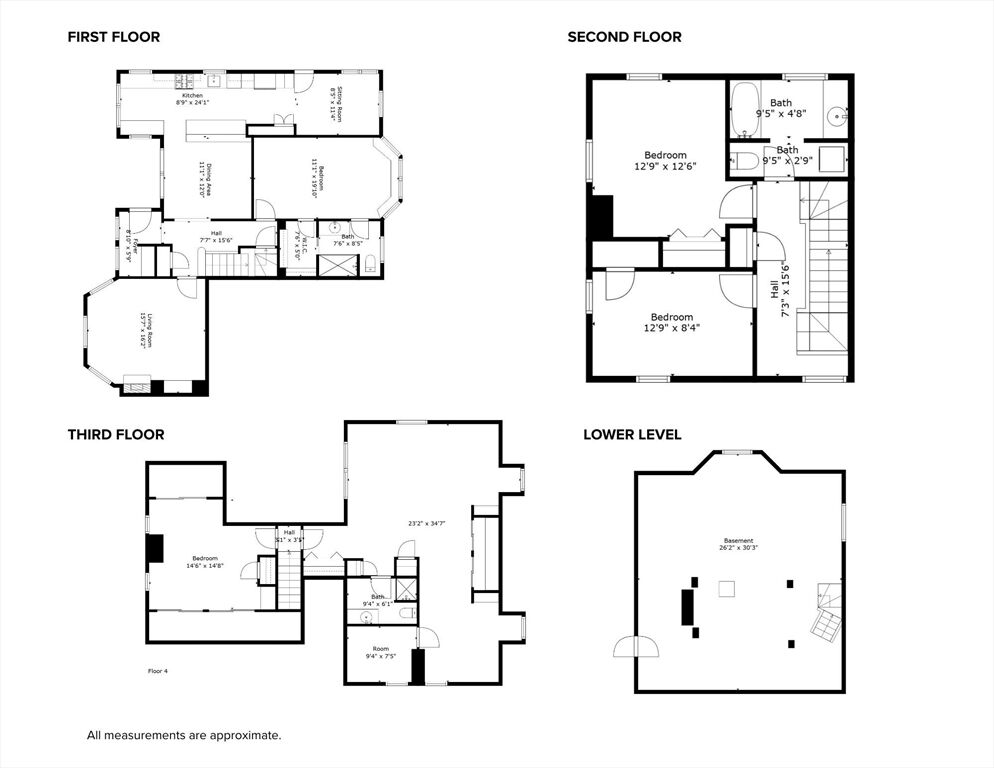
Experience elegance and history just four blocks from Lexington Center. This beautifully renovated TOWNHOUSE offers four bedrooms, three full baths, and a detached one-car garage. Filled with natural light, it blends antique character with thoughtful 2014 updates and designer wallpaper accents that add warmth and style. The first floor features a living room with a wood-burning fireplace, a spacious primary suite, and a bright kitchen with granite countertops, stainless steel appliances, and generous windows overlooking a fenced garden and deck. Upstairs, two bedrooms offer flexibility, while the third-floor suite includes a large bedroom, sitting area, home office, and extra room ideal for a walk-in closet or kitchenette. One of three units, this home is set on the grounds of a historic estate anchored by a grand oak tree believed to date back to the Revolutionary War.


General Information for 223 Waltham Street Lexington, MA 02421

Town Lexington
County Middlesex
Style Colonial
SQFT 2,719
Status Under Contract
Listing Number 73453808 (MLSPIN)

Rooms Information for 223 Waltham Street Lexington, MA 02421

Laundry Second Floor
Electric Dryer Hookup
Washer Hookup
Master Bath Features Yes
Bedroom 2 13X13
Flooring - Hardwood
Bedroom 3 8X13
Flooring - Hardwood
Bedroom 4 35X23
Flooring - Wall to Wall Carpet

Interior Information for 223 Waltham Street Lexington, MA 02421

Basement Partial
Interior Entry
Bulkhead
Concrete
Unfinished
Interior Features Office
Wood
Tile
Carpet
Flooring - Wall to Wall Carpet
Heating Forced Air
Cooling Central Air
Heat Pump
Fireplace 1
Appliances Gas Water Heater
Tankless Water Heater
Range
Dishwasher
Microwave
Refrigerator
Washer
Dryer

Exterior Information for 223 Waltham Street Lexington, MA 02421

Lot Size 1.42 acres
Lot Description Gentle Sloping
Construction Frame
Garage 1 Car Garage
Parking Spaces: 4
Detached
Garage Door Opener
Shared Driveway
Off Street
Lot Gentle Sloping
Water Public
Sewer Public Sewer
Exterior Features Deck - Composite

Neighborhood Information for 223 Waltham Street Lexington, MA 02421

Neighborhood Amenities Public Transportation
Shopping
Park
Walk/Jog Trails
Golf
Medical Facility
Conservation Area
Highway Access
House of Worship
Public School

Schools information for 223 Waltham Street Lexington, MA 02421

Elementary Hastings
Middle Diamond
High Lexington High
General Area Public, Private School and College Information

Miscellaneous Information for 223 Waltham Street Lexington, MA 02421

Year Built 1857
Association Fee 750
Taxes $16,144 /Yr
Comp

Permalink:

Listing provided courtesy of coldwell banker realty - concord

Market Snapshot as of December 7, 2025 (Last 30 days)

Condo Data
Units 5,628
Avg Price $939,304
Avg Days Listed 117
Total New Listings 1
House Data
Units 9,474
Avg Price $1,198,828
Avg Days Listed 103
Total New Listings 5
Multi-Family Data
Units 1,928
Avg Price $1,354,214
Avg Days Listed 122
Total New Listings 0

Average Price by Property Type
Units by Property Type
Average Days on Market by Property Type

Recent Home Sales In This Zip Code (02421)

For a more detailed market analyis one of our real estate agents can provide you with a full report.

Address Closing Date List Price Closing Price % of List Price

Request Information/Showing

Schedule a visit?  Yes    No
Save Property To Favorites
Map This Property
Driving Directions
 Previous  |  Next Back   
Listing: 1 of 1 Updated 46 minutes ago
Real Estate LogoThe property listing data and information set forth herein were provided to MLS Property Information Network, Inc. from third party sources, including sellers, lessors and public records, and were compiled by MLS Property Information Network, Inc. The property listing data and information are for the personal, non-commercial use of consumers having a good faith interest in purchasing or leasing listed properties of the type displayed to them and may not be used for any purpose other than to identify prospective properties which such consumers may have a good faith interest in purchasing or leasing. MLS Property Information Network, Inc. and its subscribers disclaim any and all representations and warranties as to the accuracy of the property listing data and information set forth herein. (AN6205/BB954656)