Previous  |  Next Back   
Listing: 1 of 1 Updated 18 minutes ago

22 Granite Street Medway, MA 02053

Single Family $649,900



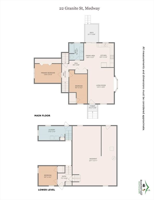
Discover the perfect blend of location, privacy, and natural beauty in this charming Medway home! Nestled on a picturesque one-acre lot along a scenic road, this multi-level 3-bedroom, 1-bath home offers endless possibilities for expansion. Freshly painted inside and out, it features wood floors in all bedrooms and the living room, and a bright eat-in kitchen with Corian countertops, new dishwasher, plumbing & lighting upgrades, a double closet & a slider to the deck. The home also comes complete with a separate laundry room w/ washer and dryer, tiled floor, storage area, & exterior access to the patio with fireplace, the shed, & the upgraded deck.With its multi-level layout and 4 separate entrances, this home offers much opportunity for additional living space. Conveniently located near Routes 495 and 109, you’ll be just minutes from shopping, schools, and all that Medway has to offer. Enjoy serene surroundings, modern updates, and room to grow—this property is a rare find!


General Information for 22 Granite Street Medway, MA 02053

Town Medway
County Norfolk
SQFT 1,546
Status Available
Listing Number 73454268 (MLSPIN)

Rooms Information for 22 Granite Street Medway, MA 02053

Laundry Laundry Closet
Flooring - Stone/Ceramic Tile
Exterior Access
Lighting - Overhead
In Basement
Electric Dryer Hookup
Washer Hookup
Master Bath Features No
Bedroom 2 Closet
Flooring - Hardwood
Lighting - Overhead
Bedroom 3 Closet
Flooring - Hardwood
Exterior Access
Lighting - Overhead

Interior Information for 22 Granite Street Medway, MA 02053

Basement Full
Partially Finished
Interior Entry
Bulkhead
Concrete
Unfinished
Interior Features Internet Available - Unknown
Wood
Tile
Vinyl
Heating Baseboard
Oil
Cooling Window Unit(s)
Appliances Water Heater
Range
Dishwasher
Refrigerator
Washer
Dryer

Exterior Information for 22 Granite Street Medway, MA 02053

Lot Size 1.01 acres
Lot Description Wooded
Gentle Sloping
Level
Construction Frame
Parking Spaces: 8
Off Street
Stone/Gravel
Lot Wooded
Gentle Sloping
Level
Water Private
Other
Sewer Private Sewer
Exterior Features Deck - Composite
Patio
Rain Gutters
Storage

Neighborhood Information for 22 Granite Street Medway, MA 02053

Neighborhood Amenities Public Transportation
Shopping
Park
Walk/Jog Trails
Stable(s)
Medical Facility
Laundromat
Bike Path
Conservation Area
Highway Access
House of Worship
Private School
Public School

Schools information for 22 Granite Street Medway, MA 02053

Elementary Burke-Mcgovern
Middle Medway Middle
High Medway High
General Area Public, Private School and College Information

Miscellaneous Information for 22 Granite Street Medway, MA 02053

Year Built 1960
Association Fee 0
Taxes $7,052 /Yr
Comp

Permalink:

Listing provided courtesy of berkshire hathaway homeservices page realty

Market Snapshot as of November 25, 2025 (Last 30 days)

Condo Data
Units 6,168
Avg Price $929,569
Avg Days Listed 110
Total New Listings 6
House Data
Units 10,541
Avg Price $1,207,882
Avg Days Listed 96
Total New Listings 8
Multi-Family Data
Units 2,072
Avg Price $1,337,942
Avg Days Listed 115
Total New Listings 0

Average Price by Property Type
Units by Property Type
Average Days on Market by Property Type

Recent Home Sales In This Zip Code (02053)

For a more detailed market analyis one of our real estate agents can provide you with a full report.

Address Closing Date List Price Closing Price % of List Price
11 Oak Street
Medway, MA 02053
10/28/2024 $650,000 $650,000 100%

Request Information/Showing

Schedule a visit?  Yes    No
Save Property To Favorites
Map This Property
Driving Directions
 Previous  |  Next Back   
Listing: 1 of 1 Updated 18 minutes ago
Real Estate LogoThe property listing data and information set forth herein were provided to MLS Property Information Network, Inc. from third party sources, including sellers, lessors and public records, and were compiled by MLS Property Information Network, Inc. The property listing data and information are for the personal, non-commercial use of consumers having a good faith interest in purchasing or leasing listed properties of the type displayed to them and may not be used for any purpose other than to identify prospective properties which such consumers may have a good faith interest in purchasing or leasing. MLS Property Information Network, Inc. and its subscribers disclaim any and all representations and warranties as to the accuracy of the property listing data and information set forth herein. (AN1504/CN202852)