Previous  |  Next Back   
Listing: 1 of 1 Updated 12 minutes ago

19 Ford Place Scituate, MA 02066

1bd. 2fb. 2pb. Single Family $829,900



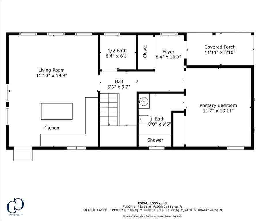
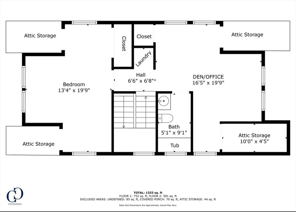
Welcome to Scituate's newest and most exciting new construction development, Greenbush Commons. This charming enclave features 4 beautifully designed, free standing cottages, each offering the perfect blend of coastal elegance and modern comfort. These 2 bedroom, 2.5 bath homes have 2 options for a primary bedroom - first or second floor. The open floor plan is light and bright, showcasing exceptional coastal finishes, kitchen with stainless appliances, vent hood, quartz countertops and island, ideal for both relaxing and entertaining. Second floor den or office space and a full unfinished basement with 8 foot ceilings. Enjoy the outdoors on your comfortable farmers porch overlooking beautifully landscaped green space. Each home also includes two dedicated parking spaces for added convenience. Located in the desirable Greenbush area, you'll be just moments from the commuter rail, walking trails, and a variety of restaurants and coffee shops, making this the perfect spot to call home!


General Information for 19 Ford Place Scituate, MA 02066

Town Scituate
Subdivision Greenbush Commons
County Plymouth
Style Colonial
SQFT 1,400
Status Available
Listing Number 73450162 (MLSPIN)

Rooms Information for 19 Ford Place Scituate, MA 02066

Laundry Second Floor
Master Bath Features Yes
Bedroom 2 Bathroom - Full
Closet
Flooring - Hardwood
Recessed Lighting

Interior Information for 19 Ford Place Scituate, MA 02066

Interior Features Closet
Bonus Room
Tile
Hardwood
Flooring - Hardwood
Heating Heat Pump
Electric
Cooling Central Air
Heat Pump
Appliances Electric Water Heater
Range
Dishwasher
Disposal
Microwave
Refrigerator
Range Hood

Exterior Information for 19 Ford Place Scituate, MA 02066

Lot Description Level
Construction Frame
Parking Spaces: 2
Paved Drive
Lot Level
Water Public
Sewer Public Sewer

Neighborhood Information for 19 Ford Place Scituate, MA 02066

Neighborhood Amenities Public Transportation
Shopping
Walk/Jog Trails
Golf
Medical Facility
House of Worship
Marina
Public School

Miscellaneous Information for 19 Ford Place Scituate, MA 02066

Association Fee 0
Comp

Permalink:

Listing provided courtesy of coldwell banker realty - scituate

Market Snapshot as of November 6, 2025 (Last 30 days)

Condo Data
Units 6,655
Avg Price $932,004
Avg Days Listed 101
Total New Listings 6
House Data
Units 11,545
Avg Price $1,235,865
Avg Days Listed 89
Total New Listings 19
Multi-Family Data
Units 2,118
Avg Price $1,300,010
Avg Days Listed 109
Total New Listings 0

Average Price by Property Type
Units by Property Type
Average Days on Market by Property Type

Recent Home Sales In This Zip Code (02066)

For a more detailed market analyis one of our real estate agents can provide you with a full report.

Address Closing Date List Price Closing Price % of List Price

Request Information/Showing

Schedule a visit?  Yes    No
Save Property To Favorites
Map This Property
Driving Directions
 Previous  |  Next Back   
Listing: 1 of 1 Updated 12 minutes ago
Real Estate LogoThe property listing data and information set forth herein were provided to MLS Property Information Network, Inc. from third party sources, including sellers, lessors and public records, and were compiled by MLS Property Information Network, Inc. The property listing data and information are for the personal, non-commercial use of consumers having a good faith interest in purchasing or leasing listed properties of the type displayed to them and may not be used for any purpose other than to identify prospective properties which such consumers may have a good faith interest in purchasing or leasing. MLS Property Information Network, Inc. and its subscribers disclaim any and all representations and warranties as to the accuracy of the property listing data and information set forth herein. (AN6209/B8001170)