Previous  |  Next Back   
Listing: 1 of 1 Updated 7 minutes ago

1825 Main St Barnstable, MA 02668

Single Family $619,000



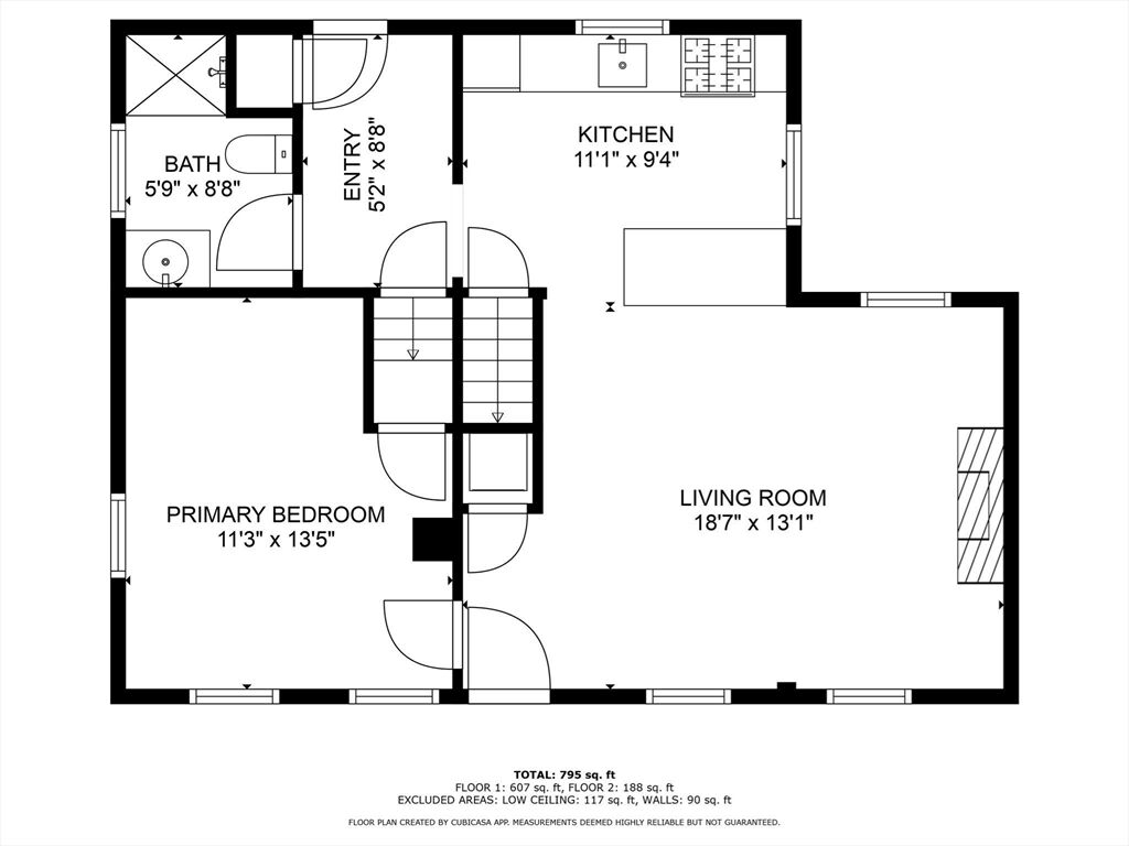
As seen on HGTV's Houses With History! This West Barnstable gem combines Cape charm with thoughtful updates. The kitchen stands out with custom copper and quartz counters, farmer's sink, and Bertazzoni gas range, while the spacious living room offers a cozy gas fireplace. The first-floor primary bedroom and stylish tiled bath make everyday living easy. Upstairs, two bedrooms with shiplap ceilings and custom rope beds capture classic Cape style. Unique details like painted wood floors, volcanic wood ceilings, brick-floored mudroom and handcrafted lighting add warmth and character. Step outside to a private yard with patio, whimsical whale mural, and an outdoor shower—the perfect spot after a day at the beach. Close to shops, trails, and sandy shores, this home is ideal for year-round living or as a proven Cape Cod rental.


General Information for 1825 Main St Barnstable, MA 02668

Town Barnstable
Village West Barnstable
County Barnstable
Style Cape
SQFT 1,002
Status Available
Listing Number 73426034 (MLSPIN)

Rooms Information for 1825 Main St Barnstable, MA 02668

Interior Information for 1825 Main St Barnstable, MA 02668

Interior Features Wood
Heating Electric
Cooling Window Unit(s)
Fireplace 1
Appliances Gas Water Heater
Range
Microwave
Refrigerator
Washer

Exterior Information for 1825 Main St Barnstable, MA 02668

Lot Size 0.17 acres
Lot Description Corner Lot
Wooded
Gentle Sloping
Construction Frame
Parking Spaces: 3
Driveway
Lot Corner Lot
Wooded
Gentle Sloping
Water Private
Sewer Private Sewer
Exterior Features Outdoor Shower

Neighborhood Information for 1825 Main St Barnstable, MA 02668

Miscellaneous Information for 1825 Main St Barnstable, MA 02668

Year Built 1800
Association Fee 0
Taxes $3,109 /Yr
Comp

Permalink:

Listing provided courtesy of william raveis real estate & homes services

Market Snapshot as of December 14, 2025 (Last 30 days)

Condo Data
Units 5,349
Avg Price $942,388
Avg Days Listed 122
Total New Listings 0
House Data
Units 8,840
Avg Price $1,198,166
Avg Days Listed 109
Total New Listings 1
Multi-Family Data
Units 1,849
Avg Price $1,332,669
Avg Days Listed 126
Total New Listings 0

Average Price by Property Type
Units by Property Type
Average Days on Market by Property Type

Recent Home Sales In This Zip Code (02668)

For a more detailed market analyis one of our real estate agents can provide you with a full report.

Address Closing Date List Price Closing Price % of List Price
1756 Osterville-West Barnstable Road
Barnstable, MA 02668
12/27/2024 $974,900 $925,000 95%
80 Church Street
Barnstable, MA 02668
12/17/2024 $624,999 $612,500 98%
20 Boxwood Drive
Barnstable, MA 02668
12/06/2024 $3,300 $3,300 100%
27 Colonial Way
Barnstable, MA 02668
12/06/2024 $795,000 $765,000 96%
164 Great Hill Drive
Barnstable, MA 02668
11/29/2024 $575,000 $580,000 101%
330 Sandy Neck Road
Barnstable, MA 02668
11/14/2024 $1,950,000 $1,825,000 94%
215 Percival Drive
Barnstable, MA 02668
11/07/2024 $799,000 $786,500 98%
24 Leonard Road
Barnstable, MA 02668
11/01/2024 $2,799,000 $2,400,000 86%
76 Moco Road
Barnstable, MA 02668
04/05/2024 $699,000 $690,000 99%
68 Oak Street
Barnstable, MA 02668
12/15/2023 $525,000 $520,000 99%

Request Information/Showing

Schedule a visit?  Yes    No
Save Property To Favorites
Map This Property
Driving Directions
 Previous  |  Next Back   
Listing: 1 of 1 Updated 7 minutes ago
Real Estate LogoThe property listing data and information set forth herein were provided to MLS Property Information Network, Inc. from third party sources, including sellers, lessors and public records, and were compiled by MLS Property Information Network, Inc. The property listing data and information are for the personal, non-commercial use of consumers having a good faith interest in purchasing or leasing listed properties of the type displayed to them and may not be used for any purpose other than to identify prospective properties which such consumers may have a good faith interest in purchasing or leasing. MLS Property Information Network, Inc. and its subscribers disclaim any and all representations and warranties as to the accuracy of the property listing data and information set forth herein. (AN0910/CN204912)