Previous  |  Next Back   
Listing: 1 of 1 Updated 56 minutes ago

17 Middlesex Ave Worcester, MA 01604

Single Family $399,000



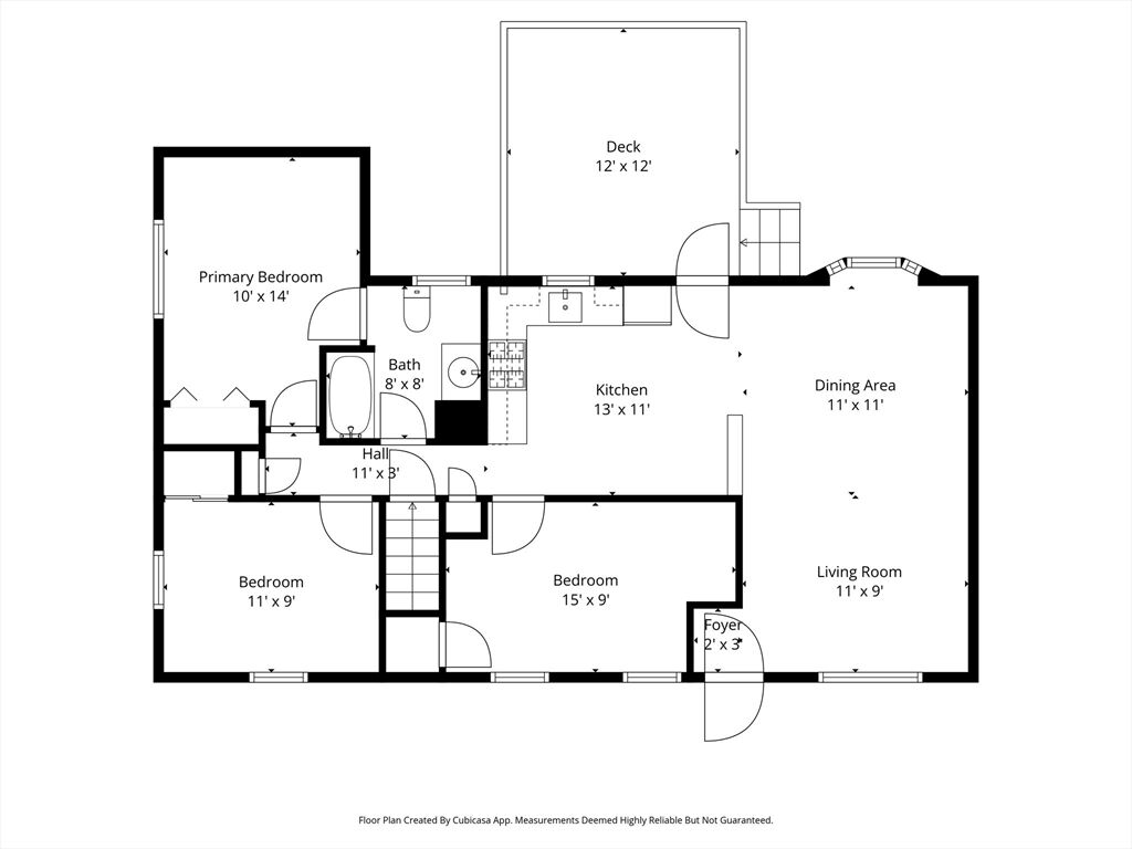
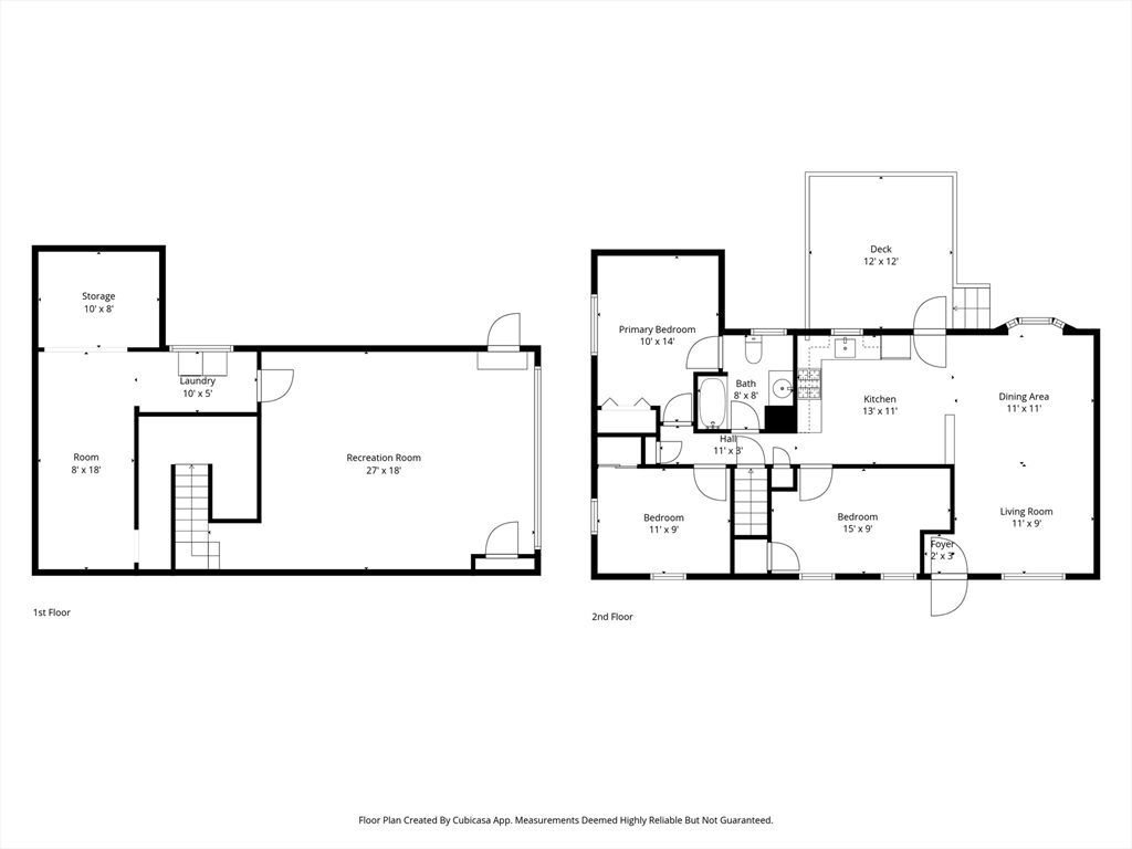
Located in an established neighborhood, 17 Middlesex Avenue is a reliable and well-maintained 3-bedroom, 1-bathroom home that reflects true pride of ownership. This property stands out for being exceptionally cared for over the last several years, offering a solid foundation for its next chapter. While the home retains its original character it provides a functional and comfortable living space. The interior features three well-proportioned bedrooms, while the semi-finished basement offers versatile extra space ideal for a home office, gym, or additional storage. Outside, the property the yard is easy to manage and has access to local amenities and commuter routes. This is an ideal opportunity for a buyer seeking an honest, sturdy home that has been handled with care and is ready for personal touches.


General Information for 17 Middlesex Ave Worcester, MA 01604

Town Worcester
Village East Worcester
County Worcester
Style Ranch
SQFT 1,000
Status Available
Listing Number 73463493 (MLSPIN)

Rooms Information for 17 Middlesex Ave Worcester, MA 01604

Interior Information for 17 Middlesex Ave Worcester, MA 01604

Basement Full
Interior Features Laminate
Hardwood
Heating Forced Air
Baseboard
Natural Gas
Cooling Central Air
Fireplace 1
Handicapped No
Appliances Gas Water Heater
Range

Exterior Information for 17 Middlesex Ave Worcester, MA 01604

Lot Size 0.18 acres
Lot Description Zero Lot Line
Gentle Sloping
Construction See Remarks
Parking Spaces: 4
Off Street
Lot Zero Lot Line
Gentle Sloping
Water Public
Sewer Public Sewer
Exterior Features Deck - Wood
Deck - Composite

Neighborhood Information for 17 Middlesex Ave Worcester, MA 01604

Neighborhood Amenities Public Transportation
Park
Walk/Jog Trails
Laundromat
Highway Access
Public School

Miscellaneous Information for 17 Middlesex Ave Worcester, MA 01604

Year Built 1965
Association Fee 0
Taxes $4,547 /Yr
Comp

Permalink:

Listing provided courtesy of re/max diverse

Market Snapshot as of December 24, 2025 (Last 30 days)

Condo Data
Units 4,690
Avg Price $946,301
Avg Days Listed 133
Total New Listings 3
House Data
Units 7,579
Avg Price $1,198,783
Avg Days Listed 119
Total New Listings 7
Multi-Family Data
Units 1,668
Avg Price $1,371,390
Avg Days Listed 136
Total New Listings 6

Average Price by Property Type
Units by Property Type
Average Days on Market by Property Type

Recent Home Sales In This Zip Code (01604)

For a more detailed market analyis one of our real estate agents can provide you with a full report.

Address Closing Date List Price Closing Price % of List Price

Request Information/Showing

Schedule a visit?  Yes    No
Save Property To Favorites
Map This Property
Driving Directions
 Previous  |  Next Back   
Listing: 1 of 1 Updated 56 minutes ago
Real Estate LogoThe property listing data and information set forth herein were provided to MLS Property Information Network, Inc. from third party sources, including sellers, lessors and public records, and were compiled by MLS Property Information Network, Inc. The property listing data and information are for the personal, non-commercial use of consumers having a good faith interest in purchasing or leasing listed properties of the type displayed to them and may not be used for any purpose other than to identify prospective properties which such consumers may have a good faith interest in purchasing or leasing. MLS Property Information Network, Inc. and its subscribers disclaim any and all representations and warranties as to the accuracy of the property listing data and information set forth herein. (AN6672/H9500244)