Previous  |  Next Back   
Listing: 1 of 1 Updated 36 minutes ago

14 Spring Street Hingham, MA 02043

Single Family $1,275,000



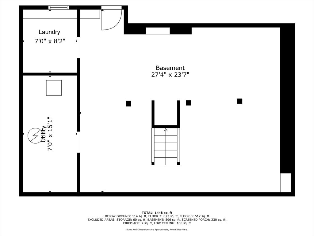
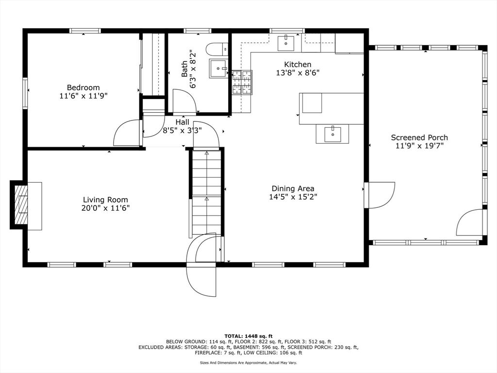
Completely renovated 4 bedroom, 2 bath Cape-style home in a highly walkable location close to downtown Hingham. The light filled interior blends classic charm with modern updates. The renovated kitchen features quartz countertops, stainless steel appliances, and custom cabinetry and opens to a dining area that flows into the fireplaced living room, creating an easy setting for everyday living and entertaining. A sunny three season room with walls of windows overlooks the private backyard and offers a peaceful spot to enjoy throughout the year. All bedrooms are well sized, and both full baths have been beautifully updated. The walk out lower level includes a large finished space ideal for a home gym, playroom, or additional gathering area. As part of the complete renovation, the home features a brand new septic system and new heating. Close to downtown Hingham, the library, local shops, and many everyday conveniences.


General Information for 14 Spring Street Hingham, MA 02043

Town Hingham
County Plymouth
Style Cape
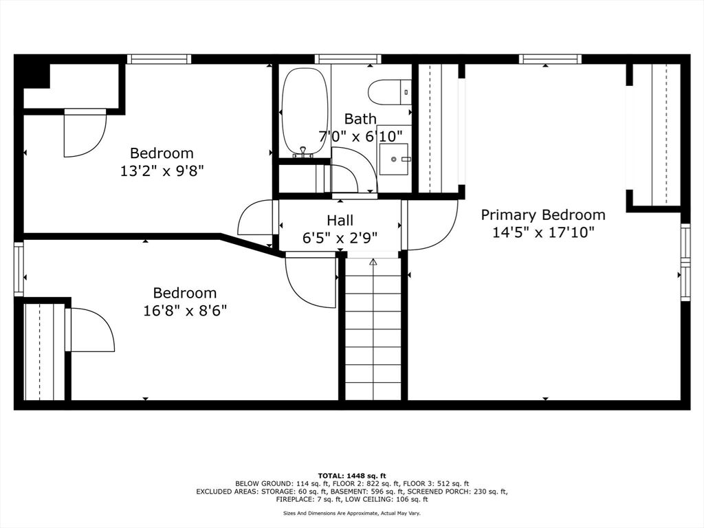
SQFT 2,044
Status Available
Listing Number 73459950 (MLSPIN)

Rooms Information for 14 Spring Street Hingham, MA 02043

Laundry In Basement
Bedroom 2 9X17
Closet
Flooring - Hardwood
Bedroom 3 10X13
Closet
Flooring - Hardwood
Bedroom 4 11X12
Closet
Flooring - Hardwood
Lighting - Pendant

Interior Information for 14 Spring Street Hingham, MA 02043

Basement Full
Interior Features Lighting - Pendant
Sun Room
Wood
Tile
Flooring - Wood
Heating Forced Air
Natural Gas
Cooling None
Fireplace 1
Appliances Gas Water Heater
Range
Dishwasher
Refrigerator

Exterior Information for 14 Spring Street Hingham, MA 02043

Lot Size 0.51 acres
Construction Frame
Parking Spaces: 2
Paved Drive
Off Street
Water Public
Sewer Private Sewer
Exterior Features Porch - Screened
Patio
Professional Landscaping

Neighborhood Information for 14 Spring Street Hingham, MA 02043

Neighborhood Amenities Public Transportation
Shopping
Park
Walk/Jog Trails
Golf
Private School
Public School

Schools information for 14 Spring Street Hingham, MA 02043

Elementary East
Middle Hingham
High Hingham
General Area Public, Private School and College Information

Miscellaneous Information for 14 Spring Street Hingham, MA 02043

Year Built 1955
Association Fee 0
Taxes $9,475 /Yr
Comp

Permalink:

Listing provided courtesy of coldwell banker realty - hingham

Market Snapshot as of December 21, 2025 (Last 30 days)

Condo Data
Units 4,887
Avg Price $944,436
Avg Days Listed 128
Total New Listings 0
House Data
Units 7,914
Avg Price $1,196,345
Avg Days Listed 115
Total New Listings 3
Multi-Family Data
Units 1,726
Avg Price $1,365,711
Avg Days Listed 132
Total New Listings 0

Average Price by Property Type
Units by Property Type
Average Days on Market by Property Type

Recent Home Sales In This Zip Code (02043)

For a more detailed market analyis one of our real estate agents can provide you with a full report.

Address Closing Date List Price Closing Price % of List Price

Request Information/Showing

Schedule a visit?  Yes    No
Save Property To Favorites
Map This Property
Driving Directions
 Previous  |  Next Back   
Listing: 1 of 1 Updated 36 minutes ago
Real Estate LogoThe property listing data and information set forth herein were provided to MLS Property Information Network, Inc. from third party sources, including sellers, lessors and public records, and were compiled by MLS Property Information Network, Inc. The property listing data and information are for the personal, non-commercial use of consumers having a good faith interest in purchasing or leasing listed properties of the type displayed to them and may not be used for any purpose other than to identify prospective properties which such consumers may have a good faith interest in purchasing or leasing. MLS Property Information Network, Inc. and its subscribers disclaim any and all representations and warranties as to the accuracy of the property listing data and information set forth herein. (AN6213/CT000293)