Previous  |  Next Back   
Listing: 1 of 1 Updated 25 minutes ago

13 Washington Ave Ashland, MA 01721

Single Family $549,000



Fall in love with this absolutely adorable Cape-style home that perfectly blends charm, flexibility, and peace of mind! Offering a versatile layout with two bedrooms on the main level and two more upstairs, this home is perfect for a variety of living situations—whether you need extra space for guests, a home office, or a growing household. With over 1,200 square feet of cozy living space, this home is nestled in a prime location just minutes from shops, restaurants, and local conveniences. Even better, all the big-ticket items have already been taken care of! Enjoy a brand-new roof, new heating system, new hot water tank, and new oil tank—giving you the confidence of major updates already done. Now all that’s left is to add your personal touches, this home is the perfect blank canvas to make your own. Whether you're dreaming of updating finishes or putting your unique style into each room, the possibilities are endless. Don’t miss out on this opportunity.


General Information for 13 Washington Ave Ashland, MA 01721

Town Ashland
County Middlesex
Style Cape
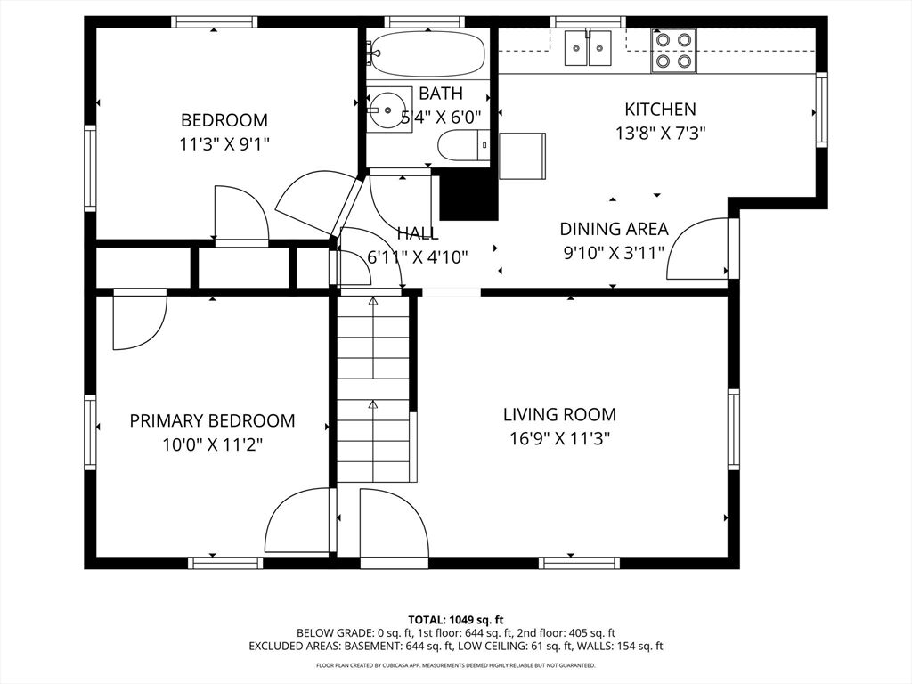
SQFT 1,212
Status Available
Listing Number 73461177 (MLSPIN)

Rooms Information for 13 Washington Ave Ashland, MA 01721

Laundry In Basement
Master Bath Features No
Bedroom 2 9X11
Flooring - Hardwood
Bedroom 3 18X10
Flooring - Wall to Wall Carpet
Bedroom 4 18X11
Flooring - Wall to Wall Carpet

Interior Information for 13 Washington Ave Ashland, MA 01721

Basement Full
Heating Forced Air
Oil
Cooling None
Appliances Water Heater
Dishwasher
Disposal
Refrigerator

Exterior Information for 13 Washington Ave Ashland, MA 01721

Lot Size 0.13 acres
Lot Description Level
Construction Frame
Parking Spaces: 3
Lot Level
Water Public
Sewer Public Sewer

Neighborhood Information for 13 Washington Ave Ashland, MA 01721

Neighborhood Amenities Public Transportation
Shopping
Highway Access

Miscellaneous Information for 13 Washington Ave Ashland, MA 01721

Year Built 1945
Association Fee 0
Taxes $5,555 /Yr
Comp

Permalink:

Listing provided courtesy of compass

Market Snapshot as of December 16, 2025 (Last 30 days)

Condo Data
Units 5,270
Avg Price $943,276
Avg Days Listed 124
Total New Listings 2
House Data
Units 8,693
Avg Price $1,191,761
Avg Days Listed 110
Total New Listings 3
Multi-Family Data
Units 1,819
Avg Price $1,336,297
Avg Days Listed 128
Total New Listings 0

Average Price by Property Type
Units by Property Type
Average Days on Market by Property Type

Recent Home Sales In This Zip Code (01721)

For a more detailed market analyis one of our real estate agents can provide you with a full report.

Address Closing Date List Price Closing Price % of List Price

Request Information/Showing

Schedule a visit?  Yes    No
Save Property To Favorites
Map This Property
Driving Directions
 Previous  |  Next Back   
Listing: 1 of 1 Updated 25 minutes ago
Real Estate LogoThe property listing data and information set forth herein were provided to MLS Property Information Network, Inc. from third party sources, including sellers, lessors and public records, and were compiled by MLS Property Information Network, Inc. The property listing data and information are for the personal, non-commercial use of consumers having a good faith interest in purchasing or leasing listed properties of the type displayed to them and may not be used for any purpose other than to identify prospective properties which such consumers may have a good faith interest in purchasing or leasing. MLS Property Information Network, Inc. and its subscribers disclaim any and all representations and warranties as to the accuracy of the property listing data and information set forth herein. (AN4191/CN214592)