| Previous | Next | Back |
| Listing: 1 of 1 | Updated 10 minutes ago |
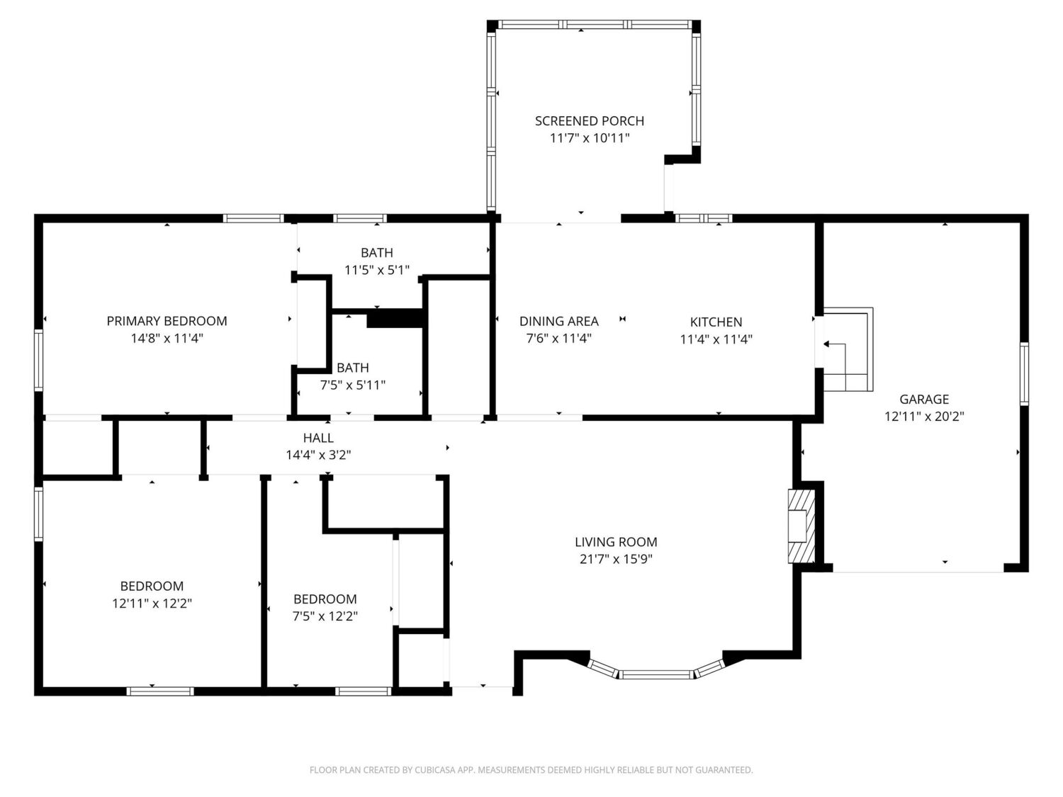
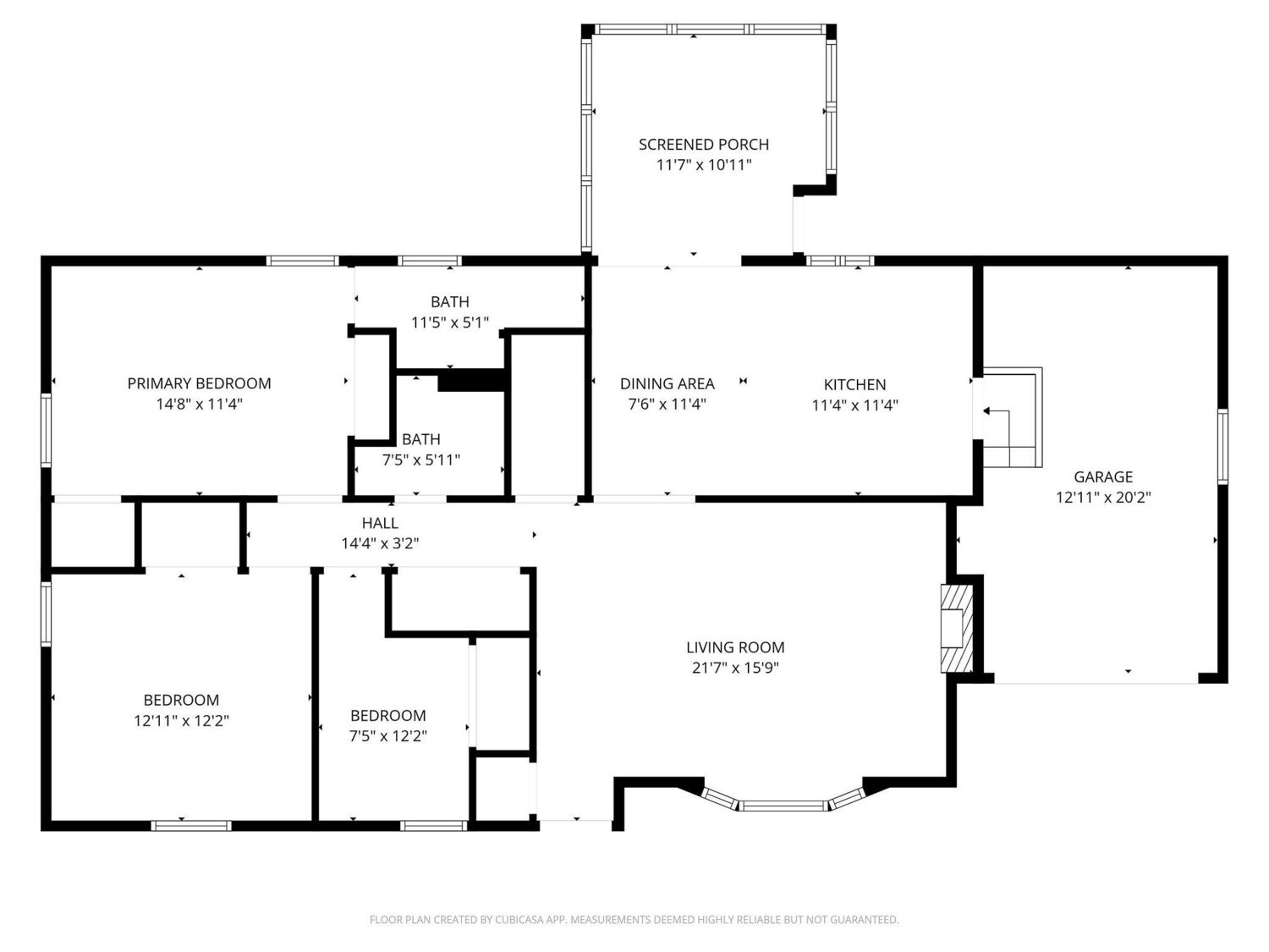
Located in the heart of Harwich Center on a quiet cul-de-sac, you'll find endless potential at 11 Windjammer Road. This three-bedroom, two-bathroom ranch sits on a generous 0.53-acre lot and features a cozy screened-in porch and new carpeting. The home includes a full basement, a one-car garage, and an outdoor shed, providing ample storage space.Ready for your updates or potential expansion, this property can be your gateway to life on Cape Cod. It is only 0.3 miles from Brooks Park, offering a playground, tennis, pickleball, and basketball courts, along with community events and live music. You'll also have access to the nearby Rail Trail.Continue your stroll into Harwich Center to visit the Brooks Public Library and enjoy local restaurants. Centrally located, you'll find it easy to reach the beaches and ponds of Harwich. Come enjoy all that Harwich has to offer and make 11 Windjammer Road your dream home.
General Information for 11 Windjammer Road Harwich, MA 02645 |
|
| Town | Harwich |
| Village | Harwich |
| County | Barnstable |
| Stories | 1 |
| Style | Ranch |
| SQFT | 1,200 |
| Status | Under Contract |
| Listing Number | 22505005 (CCIMLS) |
Rooms Information for 11 Windjammer Road Harwich, MA 02645 |
|
| Family Room | 0X0 |
| Kitchen Features | 0X0 |
| Dining Room | 0X0 |
| Bedroom | 0X0 |
| Bedroom 1 | 0X0 |
| Bedroom 2 | 0X0 |
| Bedroom 3 | 0X0 |
| Bedroom 4 | 0X0 |
Interior Information for 11 Windjammer Road Harwich, MA 02645 |
|
| Basement | Bulkhead Access Interior Entry Full |
| Fireplace | Yes |
| Appliances | Gas Water Heater |
Exterior Information for 11 Windjammer Road Harwich, MA 02645 |
|
| Lot Size | 0.53 acres |
| Lot Description | Cul-De-Sac |
| Construction | Shingle Siding |
| Garage | 1 Car Garage |
| Parking | Spaces: 3 |
| Lot | Cul-De-Sac |
| Sewer | Septic Tank |
| Exterior Features | None |
Neighborhood Information for 11 Windjammer Road Harwich, MA 02645 |
|
Schools information for 11 Windjammer Road Harwich, MA 02645 |
|
| Elementary | Monomoy |
| Middle | Monomoy |
| High | Monomoy |
| General Area Public, Private School and College Information | |
Miscellaneous Information for 11 Windjammer Road Harwich, MA 02645 |
|
| Year Built | 1985 |
| Association Fee | 0 |
| Taxes | $3,276 /Yr |
Associate Information for 11 Windjammer Road Harwich, MA 02645 |
|
|
Meghan Taylor
Brewster Office 508-221-2576 meghan.taylor@compass.com Brewster Office 2761 Main Street Brewster, MA 02631 508-896-7000
|
|
|
Permalink: |
|
| Condo | Data |
|---|---|
| Units | 5,487 |
| Avg Price | $939,271 |
| Avg Days Listed | 119 |
| Total New Listings | 0 |
| House | Data |
|---|---|
| Units | 9,074 |
| Avg Price | $1,194,131 |
| Avg Days Listed | 106 |
| Total New Listings | 7 |
| Multi-Family | Data |
|---|---|
| Units | 1,881 |
| Avg Price | $1,331,779 |
| Avg Days Listed | 124 |
| Total New Listings | 0 |
For a more detailed market analyis one of our real estate agents can provide you with a full report.
| Address | Closing Date | List Price | Closing Price | % of List Price |
|---|---|---|---|---|
| 26 Old Carriage Drive Harwich, MA 02645 |
01/03/2025 | $895,000 | $895,000 | 100% |
| 45 Buttonwood Road Harwich, MA 02645 |
12/27/2024 | $469,000 | $479,000 | 102% |
| 77 Azalea Drive Harwich, MA 02645 |
12/20/2024 | $699,000 | $720,000 | 103% |
| 80 NorEast Drive Harwich, MA 02645 |
12/20/2024 | $724,000 | $680,000 | 94% |
| 7 Grist Mill Road Harwich, MA 02645 |
12/19/2024 | $625,000 | $608,000 | 97% |
| 1 Shelley Path Harwich, MA 02645 |
12/16/2024 | $275,000 | $270,000 | 98% |
| 16 Harwood Avenue Harwich, MA 02645 |
12/16/2024 | $649,900 | $640,000 | 98% |
| 4 Crocker Rise Road Harwich, MA 02645 |
12/13/2024 | $1,799,000 | $1,750,000 | 97% |
| 54 Main Street Extension Harwich, MA 02645 |
12/13/2024 | $429,000 | $412,000 | 96% |
| 1 Edward Road Harwich, MA 02645 |
12/13/2024 | $725,000 | $783,000 | 108% |
| 3 Tern Road Harwich, MA 02645 |
12/12/2024 | $669,900 | $705,000 | 105% |
| 14 Cornerwood Drive Harwich, MA 02645 |
12/09/2024 | $875,000 | $835,000 | 95% |
| 33 Huckleberry Path Harwich, MA 02645 |
12/09/2024 | $825,000 | $800,000 | 97% |
| 500 Pleasant Lake Avenue Harwich, MA 02645 |
12/09/2024 | $849,000 | $787,500 | 93% |
| 49 Lakeview Drive Harwich, MA 02645 |
12/06/2024 | $472,900 | $470,000 | 99% |
| 3 Berts Way Harwich, MA 02645 |
12/06/2024 | $899,000 | $885,000 | 98% |
| 12 Bettys Lane Harwich, MA 02645 |
12/05/2024 | $759,000 | $744,000 | 98% |
| 28 Captains Lane Harwich, MA 02645 |
12/04/2024 | $829,000 | $825,000 | 100% |
| 10 Harding Lane Harwich, MA 02645 |
11/27/2024 | $1,625,995 | $1,575,000 | 97% |
| 74 Depot Road Harwich, MA 02645 |
11/26/2024 | $235,000 | $200,000 | 85% |
| 7 Captain Scott Road Harwich, MA 02645 |
11/26/2024 | $1,125,000 | $1,035,000 | 92% |
| 43 John Joseph Road Harwich, MA 02645 |
11/23/2024 | $595,000 | $585,000 | 98% |
| 117 Church Street Harwich, MA 02645 |
11/22/2024 | $850,000 | $800,000 | 94% |
| 22 Rocky Way Harwich, MA 02645 |
11/18/2024 | $725,000 | $742,500 | 102% |
| 15 Black Loch Drive Harwich, MA 02645 |
11/15/2024 | $1,195,000 | $1,195,000 | 100% |
| Previous | Next | Back |
| Listing: 1 of 1 | Updated 10 minutes ago |
Disclaimer: All data relating to real estate for sale on this page comes from the Broker Reciprocity (BR) of the Cape Cod & Islands Multiple Listing Service, Inc. Detailed information about real estate listings held by brokerage firms other than Kinlin Grover Compass include the name of the listing broker. Neither the listing company nor Kinlin Grover Compass shall be responsible for any typographical errors, misinformation, misprints and shall be held totally harmless. The Broker providing this data believes it to be correct, but advises interested parties to confirm any item before relying on it in a purchase decision. Copyright 2025 Cape Cod & Islands Multiple Listing Service, Inc. All rights reserved.
This site was last updated 12/12/2025. All properties are subject to prior sale, changes, or withdrawal.
Kinlin Grover Compass has chosen to display only certain towns and/or types or styles of properties. This site may not show all listings that are available through the Cape Cod & Islands Multiple Listing Service, Inc.
(CPASS12/u25716)