Previous  |  Next Back   
Listing: 1 of 1 Updated 21 minutes ago

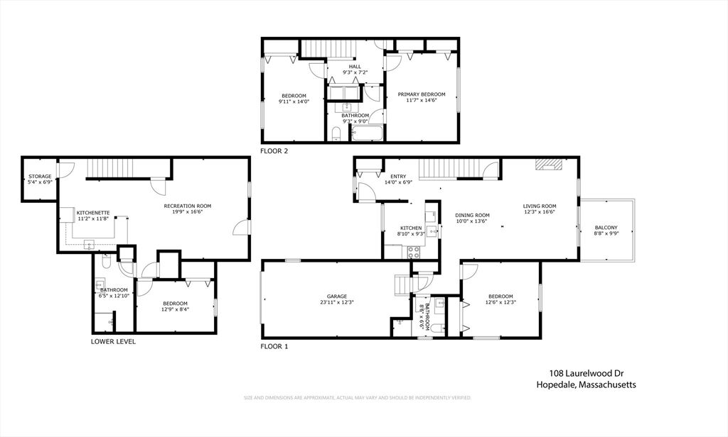
108 Laurelwood Dr 108 Hopedale, MA 01747

Condo/Townhouse $499,900



Open house canceled- offer accepted. INCREDIBLE value for this completely renovated, move-in ready condo with This SPECTACULAR home has ALL the updates & the ease of low maintenance condo lifestyle! Every big ticket item has been checked! Updates begin w. a completely renovated kitchen (2022)- granite countertops, soft close cabinets, ss appliances, LVT flooring. Follow the LVT all the way throughout the 1st floor into the open concept dining & living room. Many brand new vinyl windows & slider (2025), updated light fixtures, a charming wood burning fireplace w. Italian porcelain surround. The slider leads you to a composite back deck & a private tree lined yard. A 1st floor bedroom & full bathr (2023) complete this amazing first level. The 2nd level has 2 spacious bedrooms, an updated bathr w/ entrance to the primary bed & hallway, washer & dryer all w/ LVT flooring. A WALKOUT LL is a showstopper- (renovated in 2025). Water heater (2023), Heat pumps (2023)


General Information for 108 Laurelwood Dr 108 Hopedale, MA 01747

Town Hopedale
Subdivision Laurelwood
County Worcester
Stories 2
SQFT 2,200
Status Under Contract
Listing Number 73443080 (MLSPIN)

Rooms Information for 108 Laurelwood Dr 108 Hopedale, MA 01747

Laundry Washer Hookup
Electric Dryer Hookup
Second Floor
In Unit
Bedroom 2 Ceiling Fan(s)
Closet
Flooring - Vinyl
Lighting - Overhead
Bedroom 3 Ceiling Fan(s)
Flooring - Vinyl
Lighting - Overhead
Bedroom 4 Flooring - Vinyl
Recessed Lighting
Remodeled

Interior Information for 108 Laurelwood Dr 108 Hopedale, MA 01747

Basement Y
Interior Features Bathroom - 3/4
Countertops - Stone/Granite/Solid
Recessed Lighting
Internet Available - Unknown
Tile
Vinyl
Heating Heat Pump
Electric
Cooling Central Air
Heat Pump
Fireplace 1
Appliances Range
Dishwasher
Disposal
Microwave
Refrigerator
Washer
Dryer
Stainless Steel Appliance(s)

Exterior Information for 108 Laurelwood Dr 108 Hopedale, MA 01747

Construction Frame
Garage 1 Car Garage
Parking Spaces: 3
Attached
Off Street
Common
Paved
Water Public
Sewer Public Sewer
Exterior Features Deck - Composite
Rain Gutters

Neighborhood Information for 108 Laurelwood Dr 108 Hopedale, MA 01747

Neighborhood Amenities Public Transportation
Shopping
Tennis Court(s)
Park
Walk/Jog Trails
Golf
Medical Facility
Laundromat
Conservation Area
House of Worship
Private School
Public School

Schools information for 108 Laurelwood Dr 108 Hopedale, MA 01747

Elementary Memorial
Middle Jr/Sr High
High Jr/Sr High
General Area Public, Private School and College Information

Miscellaneous Information for 108 Laurelwood Dr 108 Hopedale, MA 01747

Year Built 1984
Association Fee 445
Taxes $5,950 /Yr
Comp

Permalink:

Listing provided courtesy of real broker ma, llc

Market Snapshot as of November 7, 2025 (Last 30 days)

Condo Data
Units 6,674
Avg Price $929,569
Avg Days Listed 101
Total New Listings 1
House Data
Units 11,580
Avg Price $1,230,458
Avg Days Listed 88
Total New Listings 5
Multi-Family Data
Units 2,135
Avg Price $1,298,621
Avg Days Listed 108
Total New Listings 0

Average Price by Property Type
Units by Property Type
Average Days on Market by Property Type

Recent Home Sales In This Zip Code (01747)

For a more detailed market analyis one of our real estate agents can provide you with a full report.

Address Closing Date List Price Closing Price % of List Price

Request Information/Showing

Schedule a visit?  Yes    No
Save Property To Favorites
Map This Property
Driving Directions
 Previous  |  Next Back   
Listing: 1 of 1 Updated 21 minutes ago
Real Estate LogoThe property listing data and information set forth herein were provided to MLS Property Information Network, Inc. from third party sources, including sellers, lessors and public records, and were compiled by MLS Property Information Network, Inc. The property listing data and information are for the personal, non-commercial use of consumers having a good faith interest in purchasing or leasing listed properties of the type displayed to them and may not be used for any purpose other than to identify prospective properties which such consumers may have a good faith interest in purchasing or leasing. MLS Property Information Network, Inc. and its subscribers disclaim any and all representations and warranties as to the accuracy of the property listing data and information set forth herein. (AN7455/CN245654)