Previous  |  Next Back   
Listing: 1 of 1 Updated 48 minutes ago

1 Pond Pl Franklin, MA 02038

Single Family $325,000



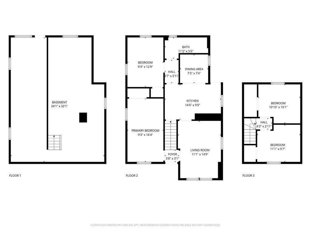
Charming 4-bedroom, 1-bath Village Colonial located on a quiet dead-end street in the heart of downtown Franklin! Enjoy the ultimate convenience—walk to the commuter rail, baseball fields, shops, and restaurants. This home is full of potential, featuring hardwood flooring, first floor bedroom options, a cute kitchen layout with breakfast nook, vinyl siding, a detached 1-car garage, and a private backyard. Bring your vision to life as is or add more square footage with an upstairs expansion. With its prime location and classic character, this property is the perfect opportunity for a complete rehab. Sold as-is, with no warranties or representations. Floor plans provided, town water, sewer and natural gas.


General Information for 1 Pond Pl Franklin, MA 02038

Town Franklin
County Norfolk
Style Colonial
SQFT 942
Status Available
Listing Number 73446911 (MLSPIN)

Rooms Information for 1 Pond Pl Franklin, MA 02038

Master Bath Features No

Interior Information for 1 Pond Pl Franklin, MA 02038

Basement Full
Walk-Out Access
Unfinished
Interior Features Hardwood
Heating Steam
Natural Gas
Cooling None

Exterior Information for 1 Pond Pl Franklin, MA 02038

Lot Size 0.14 acres
Lot Description Level
Construction Frame
Garage 1 Car Garage
Parking Spaces: 2
Detached
Off Street
Paved
Lot Level
Water Public
Sewer Public Sewer

Neighborhood Information for 1 Pond Pl Franklin, MA 02038

Neighborhood Amenities Public Transportation
Shopping
Park
Highway Access
Public School
T-Station
University

Schools information for 1 Pond Pl Franklin, MA 02038

Elementary Washington St
Middle Franklin
High Franklin
General Area Public, Private School and College Information

Miscellaneous Information for 1 Pond Pl Franklin, MA 02038

Year Built 1890
Association Fee 0
Taxes $4,839 /Yr
Comp

Permalink:

Listing provided courtesy of berkshire hathaway homeservices commonwealth real estate

Market Snapshot as of October 24, 2025 (Last 30 days)

Condo Data
Units 7,023
Avg Price $932,820
Avg Days Listed 97
Total New Listings 15
House Data
Units 12,371
Avg Price $1,245,700
Avg Days Listed 85
Total New Listings 34
Multi-Family Data
Units 2,168
Avg Price $1,277,892
Avg Days Listed 107
Total New Listings 2

Average Price by Property Type
Units by Property Type
Average Days on Market by Property Type

Recent Home Sales In This Zip Code (02038)

For a more detailed market analyis one of our real estate agents can provide you with a full report.

Address Closing Date List Price Closing Price % of List Price

Request Information/Showing

Schedule a visit?  Yes    No
Save Property To Favorites
Map This Property
Driving Directions
 Previous  |  Next Back   
Listing: 1 of 1 Updated 48 minutes ago
Real Estate LogoThe property listing data and information set forth herein were provided to MLS Property Information Network, Inc. from third party sources, including sellers, lessors and public records, and were compiled by MLS Property Information Network, Inc. The property listing data and information are for the personal, non-commercial use of consumers having a good faith interest in purchasing or leasing listed properties of the type displayed to them and may not be used for any purpose other than to identify prospective properties which such consumers may have a good faith interest in purchasing or leasing. MLS Property Information Network, Inc. and its subscribers disclaim any and all representations and warranties as to the accuracy of the property listing data and information set forth herein. (AN4875/CN221980)