| Previous | Next | Back |
| Listing: 1 of 1 | Updated 20 minutes ago |
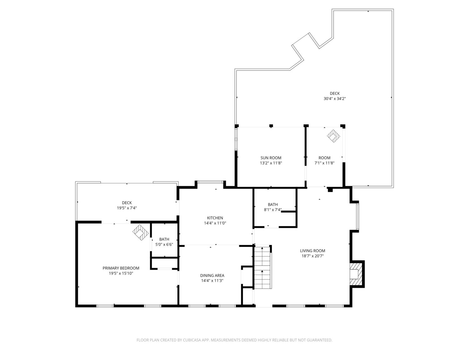
Come see this beautifully maintained Cape-style home in Hyannis offering over 1,900 sq. ft. of living space. The property features 3 bedrooms, 4 full bathrooms, a four-season porch, and a partially finished basement. The spacious, partially fenced yard offers well-kept landscaping, an irrigation system, and a brand-new deck off the porch.Renovations completed in 2016/2017 include new siding, interior paint, kitchen updates, and bathroom improvements. Additional highlights include hardwood floors, a fireplace, gas heat, central AC, a storage shed, and solar panels installed in 2019 ready to transfer to the new owner. Located in a convenient neighborhood, this home offers comfort, charm, and peace of mind.
General Information for 220 Fawcett Lane Hyannis, MA 02601 |
|
| Town | Barnstable |
| Village | Hyannis |
| County | Barnstable |
| Stories | 2 |
| Style | Cape Cod |
| SQFT | 1,918 |
| Status | Available |
| Listing Number | 22505792 (CCIMLS) |
Rooms Information for 220 Fawcett Lane Hyannis, MA 02601 |
|
| Family Room | 0X0 Fireplace(s): Wood Burning Flooring: Wood Recessed Lighting Living Room |
| Kitchen Features | 0X0 Flooring: Wood Kitchen Pantry |
| Dining Room | 0X0 Flooring: Wood Dining Room |
| Bedroom | 0X0 Flooring: Wood Closet |
| Master Bath Features | Private Full Bath |
| Bedroom 1 | 0X0 Flooring: Wood Closet |
| Bedroom 2 | 0X0 Flooring: Wood Closet |
| Bedroom 3 | 0X0 Flooring: Wood |
| Bedroom 4 | 0X0 |
Interior Information for 220 Fawcett Lane Hyannis, MA 02601 |
|
| Basement | Bulkhead Access Interior Entry Full Cape Cod Finished |
| Interior Features | Pantry |
| Fireplace | Yes |
| Appliances | Dishwasher Washer/Dryer Stacked Refrigerator Gas Range Microwave Gas Dryer Gas Water Heater |
Exterior Information for 220 Fawcett Lane Hyannis, MA 02601 |
|
| Lot Size | 0.31 acres |
| Lot Description | In Town Location School House of Worship Shopping |
| Construction | Shingle Siding |
| Parking | Spaces: 4 |
| Lot | In Town Location School House of Worship Shopping |
| Sewer | Septic Tank |
Neighborhood Information for 220 Fawcett Lane Hyannis, MA 02601 |
|
Schools information for 220 Fawcett Lane Hyannis, MA 02601 |
|
| Elementary | Barnstable |
| Middle | Barnstable |
| High | Barnstable |
| General Area Public, Private School and College Information | |
Miscellaneous Information for 220 Fawcett Lane Hyannis, MA 02601 |
|
| Year Built | 1966 |
| Distance to Beach | 2 Plus |
| Association Fee | 0 |
| Taxes | $5,230 /Yr |
|
Permalink: |
|
| Condo | Data |
|---|---|
| Units | 5,622 |
| Avg Price | $939,665 |
| Avg Days Listed | 117 |
| Total New Listings | 7 |
| House | Data |
|---|---|
| Units | 9,465 |
| Avg Price | $1,199,201 |
| Avg Days Listed | 103 |
| Total New Listings | 20 |
| Multi-Family | Data |
|---|---|
| Units | 1,927 |
| Avg Price | $1,354,292 |
| Avg Days Listed | 122 |
| Total New Listings | 0 |
For a more detailed market analyis one of our real estate agents can provide you with a full report.
| Address | Closing Date | List Price | Closing Price | % of List Price |
|---|---|---|---|---|
| 46 Spring Street Hyannis, MA 02601 |
01/06/2025 | $499,900 | $480,000 | 96% |
| 408 Sea Street Hyannis, MA 02601 |
01/02/2025 | $1,250,000 | $1,170,000 | 94% |
| 37 Wellesley Circle Hyannis, MA 02601 |
12/31/2024 | $529,000 | $542,000 | 102% |
| 80 Old Colony Road Hyannis, MA 02601 |
12/30/2024 | $725,000 | $720,000 | 99% |
| 185 Stevens Street 3A Hyannis, MA 02601 |
12/23/2024 | $369,000 | $380,000 | 103% |
| 131 Castlewood Circle Hyannis, MA 02601 |
12/20/2024 | $499,900 | $505,000 | 101% |
| 74 Circuit Avenue Hyannis, MA 02601 |
12/20/2024 | $1,152,000 | $1,050,520 | 91% |
| 89 Mitchell's Way Hyannis, MA 02601 |
12/19/2024 | $573,000 | $560,000 | 98% |
| 96 Connemara Circle Hyannis, MA 02601 |
12/19/2024 | $459,000 | $459,000 | 100% |
| 44 Stevens Street Hyannis, MA 02601 |
12/10/2024 | $579,000 | $563,500 | 97% |
| 115 Oakview Terrace Hyannis, MA 02601 |
12/06/2024 | $639,900 | $630,000 | 98% |
| 101 Windshore Drive Hyannis, MA 02601 |
12/06/2024 | $549,900 | $565,000 | 103% |
| 200 Oak Neck Road Hyannis, MA 02601 |
12/06/2024 | $569,000 | $534,000 | 94% |
| 855 W Main Street 15 Barnstable, MA 02601 |
12/05/2024 | $325,000 | $320,000 | 98% |
| 191 Bishops Terrace Hyannis, MA 02601 |
12/03/2024 | $599,900 | $580,000 | 97% |
| 69 Greenbrier Lane Hyannis, MA 02601 |
12/02/2024 | $575,000 | $575,000 | 100% |
| 32 Nautical Road Hyannis, MA 02601 |
11/27/2024 | $590,000 | $544,000 | 92% |
| 855 W Main Street 8 Hyannis, MA 02601 |
11/26/2024 | $270,000 | $260,000 | 96% |
| 56 West Hyannisport Circle Hyannis, MA 02601 |
11/26/2024 | $725,000 | $720,000 | 99% |
| 89 Lewis Bay Road 303 Hyannis, MA 02601 |
11/25/2024 | $499,000 | $497,500 | 100% |
| 5 Canterbury Circle Hyannis, MA 02601 |
11/22/2024 | $649,000 | $700,000 | 108% |
| 64 Studley Road Hyannis, MA 02601 |
11/22/2024 | $890,000 | $841,000 | 94% |
| 98 High School Road Hyannis, MA 02601 |
11/21/2024 | $795,000 | $610,000 | 77% |
| 104 High School Road Hyannis, MA 02601 |
11/21/2024 | $324,900 | $360,000 | 111% |
| 58 Seaboard Lane Hyannis, MA 02601 |
11/18/2024 | $475,000 | $475,000 | 100% |
| Previous | Next | Back |
| Listing: 1 of 1 | Updated 20 minutes ago |
Disclaimer: All data relating to real estate for sale on this page comes from the Broker Reciprocity (BR) of the Cape Cod & Islands Multiple Listing Service, Inc. Detailed information about real estate listings held by brokerage firms other than Kinlin Grover Compass include the name of the listing broker. Neither the listing company nor Kinlin Grover Compass shall be responsible for any typographical errors, misinformation, misprints and shall be held totally harmless. The Broker providing this data believes it to be correct, but advises interested parties to confirm any item before relying on it in a purchase decision. Copyright 2025 Cape Cod & Islands Multiple Listing Service, Inc. All rights reserved.
This site was last updated 12/07/2025. All properties are subject to prior sale, changes, or withdrawal.
Kinlin Grover Compass has chosen to display only certain towns and/or types or styles of properties. This site may not show all listings that are available through the Cape Cod & Islands Multiple Listing Service, Inc.
(EXTCR2/U25388)